Top những mẫu nhà vuông mới nhất đẹp hiện đại 2025
Bạn đang tìm kiếm một ngôi nhà không chỉ đẹp mắt, hiện đại mà còn tối ưu về công năng sử dụng? Cùng khám phá những mẫu nhà vuông mới nhất đang dẫn đầu xu hướng, hứa hẹn mang đến không gian sống lý tưởng cho gia đình bạn.
Đặc trưng của nhà vuông
Nhà vuông là kiểu kiến trúc có hình dáng cơ bản là hình vuông hoặc gần vuông, tức là chiều rộng và chiều sâu của ngôi nhà không quá chênh lệch. Đây là một trong những kiểu nhà phổ biến nhất và được ưa chuộng nhờ vào sự cân đối, hài hòa trong thiết kế và khả năng tối ưu không gian hiệu quả.
Điểm đặc trưng của nhà vuông là các phòng thường có hình dáng vuông vắn, dễ dàng bố trí nội thất. Hình khối đơn giản này cũng tạo điều kiện cho sự sáng tạo trong việc tạo hình mặt tiền, kết hợp vật liệu và ánh sáng, mang đến nhiều phong cách kiến trúc khác nhau từ hiện đại, tối giản đến cổ điển.
Ưu và nhược điểm của nhà vuông
Mỗi kiểu thiết kế nhà đều có những điểm mạnh và điểm yếu riêng. Cùng phân tích về những mẫu nhà vuông mới nhất:
Ưu điểm nổi bật
- Tối ưu diện tích sử dụng: Nhờ hình dáng vuông vắn, các không gian trong nhà được phân chia hợp lý, ít góc chết, giúp tận dụng tối đa diện tích sàn. Điều này đặc biệt quan trọng với những lô đất không quá lớn.
- Dễ dàng bố trí công năng: Các phòng có hình vuông hoặc chữ nhật giúp việc sắp xếp nội thất trở nên đơn giản và thuận tiện hơn rất nhiều, tạo cảm giác rộng rãi, thoáng đãng.
- Kết cấu vững chắc, bền bỉ: Hình khối vuông vắn mang lại sự cân bằng trong kết cấu, giúp ngôi nhà vững chãi hơn, chịu lực tốt hơn trước các tác động của thời tiết.
- Tiết kiệm chi phí xây dựng: So với những thiết kế phức tạp với nhiều góc cạnh hay đường cong, nhà vuông thường có chi phí vật liệu và nhân công thấp hơn, thời gian thi công cũng nhanh hơn.
- Thích nghi với nhiều phong cách kiến trúc: Hình khối cơ bản của nhà vuông là nền tảng tốt để áp dụng đa dạng các phong cách từ hiện đại, tối giản đến tân cổ điển, hoặc kết hợp với mái Thái, mái Nhật.
- Yếu tố phong thủy tốt: Theo quan niệm truyền thống, nhà vuông vắn, cân đối thường mang lại sự ổn định, bình an, vượng khí và may mắn cho gia chủ.
Nhược điểm cần cân nhắc
- Dễ bị đơn điệu nếu không có thiết kế sáng tạo: Nếu không có sự phá cách trong mặt tiền hoặc bố cục, nhà vuông có thể trông khá tẻ nhạt, thiếu điểm nhấn.
- Hạn chế ánh sáng và thông gió cho phòng giữa (với nhà sâu): Đối với những ngôi nhà vuông có chiều sâu lớn và không có giếng trời, các phòng nằm ở giữa có thể bị thiếu sáng và không khí tự nhiên.
- Khó tạo ra sự độc đáo tuyệt đối: Vì là kiểu nhà phổ biến, để tạo nên một ngôi nhà vuông thực sự độc đáo, bạn sẽ cần sự sáng tạo đột phá từ kiến trúc sư.
>>> Xem thêm tại: Top những mẫu nhà vuông 1 tầng đẹp hiện đại 2025
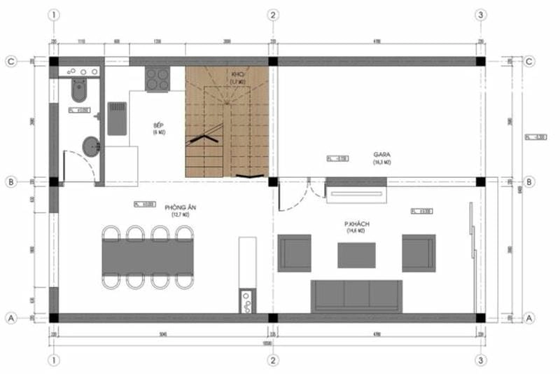
Gợi ý các mẫu nhà vuông đẹp, dẫn đầu xu hướng 2025


>>> Xem thêm tại: Những mẫu nhà mồ - Nét đẹp tâm linh và sự hiếu kính
Những lưu ý khi xây dựng nhà vuông đẹp và tiện nghi
Để sở hữu một ngôi nhà vuông ưng ý, vừa đẹp vừa đảm bảo công năng, bạn cần đặc biệt chú ý đến những yếu tố sau trong quá trình thiết kế và thi công:
Tối ưu ánh sáng và thông gió
- Giếng trời: Đây là giải pháp hữu hiệu nhất cho nhà vuông, đặc biệt là những nhà có diện tích sâu. Giếng trời giúp đưa ánh sáng tự nhiên và luồng khí tươi vào sâu bên trong ngôi nhà, tạo sự thông thoáng cho mọi không gian.
- Hệ thống cửa: Ưu tiên sử dụng cửa sổ, cửa đi lớn bằng kính cường lực để tối đa hóa lượng ánh sáng tự nhiên và mở rộng tầm nhìn. Có thể kết hợp lam chắn nắng hoặc rèm để điều tiết.
- Thiết kế không gian mở: Kết nối phòng khách, bếp và phòng ăn thành một không gian chung giúp tạo cảm giác rộng rãi và thoáng đãng hơn.
Bố trí công năng hợp lý
- Xác định rõ nhu cầu: Lên danh sách các phòng cần thiết, số lượng thành viên, và các khu vực chức năng (phòng khách, phòng ngủ, bếp, phòng thờ, phòng sinh hoạt chung, sân phơi...).
- Sắp xếp khoa học: Bố trí các khu vực chức năng theo một trình tự hợp lý để tối ưu hóa việc di chuyển và sử dụng. Ví dụ, phòng khách thường ở phía trước, tiếp theo là bếp và phòng ăn.
- Tận dụng góc chết: Thiết kế các tủ âm tường, kệ âm tường hoặc tận dụng gầm cầu thang (đối với nhà nhiều tầng) để làm kho hoặc tủ lưu trữ.
Lựa chọn vật liệu và màu sắc hài hòa
- Vật liệu mặt tiền: Chọn vật liệu bền, đẹp, chịu được thời tiết như sơn ngoại thất cao cấp, gạch ốp, đá ốp, gỗ nhựa. Sự kết hợp các vật liệu khác nhau sẽ tạo điểm nhấn.
- Vật liệu nội thất: Đồng bộ với phong cách thiết kế đã chọn. Ví dụ: gỗ, đá cho phong cách sang trọng; kính, kim loại cho hiện đại.
- Màu sắc chủ đạo: Sử dụng các gam màu trung tính (trắng, be, xám) làm nền để dễ dàng kết hợp nội thất. Sau đó, thêm các màu sắc điểm nhấn để tạo cá tính.
Chú ý yếu tố phong thủy
- Hướng nhà và cửa: Tham khảo ý kiến chuyên gia để chọn hướng nhà, hướng cửa chính phù hợp với tuổi và mệnh của gia chủ, giúp thu hút tài lộc, may mắn.
- Bố trí phòng chức năng: Đặt vị trí bếp, phòng ngủ, phòng thờ ở những cung tốt, tránh những vị trí xấu theo quan niệm phong thủy.
- Tránh các góc nhọn: Hạn chế các góc nhọn trong nhà, nếu có thể dùng tủ kệ hoặc cây xanh để hóa giải.
Với những thông tin toàn diện về những mẫu nhà vuông mới nhất, từ đặc trưng, ưu nhược điểm đến lưu ý xây dựng và gợi ý các mẫu nhà đẹp, hy vọng bạn đã có đủ kiến thức và ý tưởng để kiến tạo nên tổ ấm lý tưởng cho gia đình mình.