+50 mẫu nhà vườn 1 tầng - Không gian sống xanh cho gia đình
Bạn mơ ước một tổ ấm chan hòa với thiên nhiên, nơi mỗi ngày đều được hít thở không khí trong lành và ngắm nhìn khu vườn xanh mát? Mẫu nhà vườn 1 tầng chính là lựa chọn hoàn hảo, mang đến không gian sống tiện nghi, thoải mái mà vẫn giữ được sự gần gũi, thơ mộng. Hãy cùng khám phá chi tiết về loại hình nhà ở này nhé!
Tiêu chí quan trọng khi thiết kế mẫu nhà vườn 1 tầng
Để có một mẫu nhà vườn 1 tầng đẹp và phát huy tối đa công năng, bạn cần đặc biệt chú ý đến những tiêu chí sau:
- Tối ưu hóa diện tích đất: Dù là nhà 1 tầng, nhưng với không gian vườn bao quanh, bạn cần một diện tích đất đủ lớn để đảm bảo sự hài hòa giữa phần nhà và phần sân vườn.
- Diện tích phổ biến: Thường yêu cầu mảnh đất từ 150m² trở lên để có đủ không gian cho nhà và vườn.
- Phân chia không gian: Cần tính toán tỉ lệ giữa diện tích xây dựng nhà và diện tích dành cho sân vườn (lối đi, tiểu cảnh, khu vực trồng cây, ao cá,...) sao cho cân đối và tiện ích.
- Kết nối không gian trong nhà và ngoài vườn: Đây là điểm nhấn của nhà vườn.
- Cửa kính lớn, vách kính: Sử dụng vật liệu kính cho cửa ra vào, cửa sổ, vách ngăn để tầm nhìn luôn hướng ra vườn, đưa ánh sáng tự nhiên vào sâu bên trong.
- Hiên nhà, ban công/sân thượng nhỏ: Tạo các không gian đệm lý tưởng để thư giãn, ngắm cảnh.
- Phong cách kiến trúc phù hợp:
- Hiện đại: Ưu tiên đường nét đơn giản, hình khối gọn gàng, sử dụng màu sắc trang nhã, vật liệu tự nhiên (gỗ, đá) để tạo sự sang trọng, tinh tế và dễ dàng hòa mình vào cảnh quan.
- Mái Thái/Mái Nhật: Giúp ngôi nhà thêm thanh thoát, cao ráo, đồng thời chống nóng và thoát nước tốt, phù hợp với khí hậu Việt Nam.
- Phong cách Rustic (mộc mạc): Sử dụng nhiều vật liệu thô, gỗ, đá tự nhiên, tạo cảm giác gần gũi, giản dị.
- Bố trí công năng khoa học: Dù chỉ 1 tầng, việc sắp xếp phòng khách, bếp, phòng ăn, phòng ngủ, nhà vệ sinh... vẫn cần được tính toán kỹ lưỡng để tối ưu diện tích và đảm bảo sự thuận tiện trong sinh hoạt hàng ngày.
- Yếu tố phong thủy: Hướng nhà, hướng cửa, vị trí bếp, phòng ngủ vẫn là những yếu tố được nhiều gia chủ quan tâm để mang lại vượng khí, tài lộc cho gia đình.
Kinh nghiệm chọn mẫu nhà vườn 1 tầng lý tưởng
Để chọn được mẫu nhà vườn 1 tầng đẹp và phù hợp nhất với gia đình mình, bạn nên tham khảo những kinh nghiệm dưới đây:
- Xác định rõ nhu cầu sử dụng: Gia đình bạn có bao nhiêu thành viên? Cần bao nhiêu phòng ngủ? Có cần phòng làm việc, phòng thờ, hay gara ô tô không? Điều này sẽ giúp kiến trúc sư phác thảo công năng phù hợp.
- Định hình phong cách yêu thích: Bạn muốn ngôi nhà mình mang hơi hướng hiện đại, truyền thống, hay tân cổ điển nhẹ nhàng? Nắm rõ phong cách sẽ giúp việc lựa chọn mẫu và vật liệu dễ dàng hơn.
- Quan tâm đến hệ thống thông gió và chiếu sáng: Dù có sân vườn, nhưng việc bố trí các cửa sổ lớn, khe thoáng, hoặc giếng trời (nếu cần) vẫn rất quan trọng để đảm bảo không khí luôn lưu thông và ánh sáng tự nhiên tràn ngập khắp các phòng.
- Thiết kế cảnh quan sân vườn đồng bộ: Sân vườn không chỉ là cây cối mà còn bao gồm lối đi, tiểu cảnh, đèn trang trí, hệ thống thoát nước. Hãy đảm bảo chúng hài hòa với kiến trúc ngôi nhà.
- Chọn cây trồng phù hợp: Ưu tiên cây dễ chăm sóc, ít rụng lá, không gây ẩm mốc hay thu hút côn trùng độc hại.
- Hệ thống thoát nước vườn: Rất quan trọng để tránh ngập úng khi mưa, gây ảnh hưởng đến cây cối và kết cấu nhà.
- Lựa chọn đơn vị thiết kế và thi công chuyên nghiệp: Một đơn vị có kinh nghiệm trong việc thiết kế và thi công nhà vườn 1 tầng sẽ giúp bạn có bản vẽ tối ưu, đảm bảo chất lượng công trình và tránh phát sinh chi phí không đáng có.
- Dự trù kinh phí chi tiết: Bao gồm cả chi phí thiết kế, xây dựng phần thô, hoàn thiện, nội thất và đặc biệt là chi phí cho phần sân vườn.
>>> Xem thêm tại: Nhà vườn 2 tầng - Vẻ đẹp thơ mộng cho không gian lý tưởng
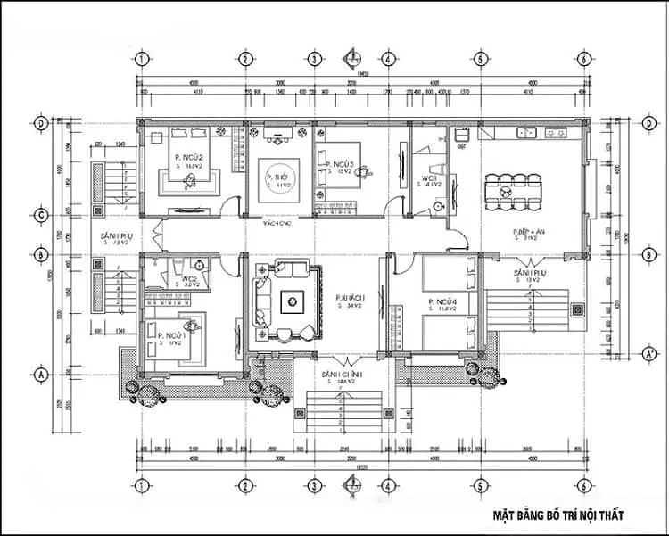
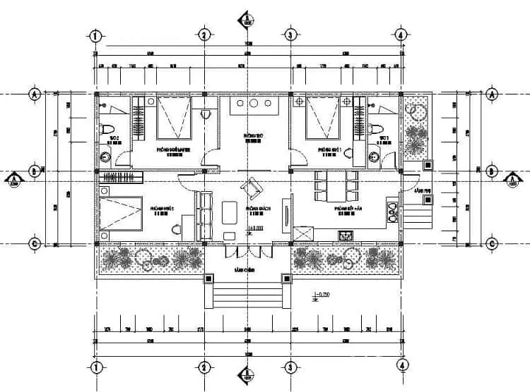
Gợi ý các mẫu nhà vườn 1 tầng đẹp và phổ biến

>>> Xem thêm tại: Nhà mái thái 2 tầng - Vẻ đẹp sang trọng cho tổ ấm gia đình
Chi phí xây nhà vườn 1 tầng
Chi phí xây nhà vườn 1 tầng là một trong những yếu tố quan tâm hàng đầu của nhiều gia chủ. Mức đầu tư này sẽ phụ thuộc vào nhiều yếu tố:
- Diện tích xây dựng và diện tích sân vườn: Diện tích sàn xây dựng nhà càng lớn, tổng chi phí càng cao. Chi phí cho việc làm sân vườn cũng là một khoản đáng kể, phụ thuộc vào quy mô và độ phức tạp của tiểu cảnh, cây cối.
- Phong cách kiến trúc: Các phong cách có nhiều chi tiết cầu kỳ (như tân cổ điển) sẽ tốn kém hơn so với phong cách hiện đại, tối giản.
- Vật liệu xây dựng: Sự lựa chọn vật liệu từ phần thô (gạch, thép, xi măng) đến phần hoàn thiện (mái lợp, gạch ốp lát, sơn, thiết bị vệ sinh, nội thất) và vật liệu cảnh quan (đá, gỗ, cây cảnh) sẽ ảnh hưởng đáng kể đến tổng mức đầu tư.
- Địa điểm xây dựng: Chi phí nhân công và vận chuyển vật liệu có thể chênh lệch giữa các vùng miền (thành phố, nông thôn).
- Thời điểm xây dựng: Giá vật liệu và nhân công có thể thay đổi theo thị trường và mùa vụ.
- Đơn vị thi công: Các nhà thầu khác nhau sẽ có báo giá và chất lượng dịch vụ khác nhau.
Ước tính sơ bộ: Thông thường, đơn giá xây dựng phần thô và nhân công hoàn thiện cho nhà vườn 1 tầng dao động khoảng 4.5 - 6.5 triệu đồng/m² (chưa bao gồm chi phí sân vườn). Chi phí cho phần sân vườn có thể chiếm thêm từ 5% đến 20% tổng chi phí xây nhà, tùy thuộc vào quy mô và độ cầu kỳ. Để có con số chính xác nhất, bạn nên làm việc với kiến trúc sư và nhà thầu để có bản vẽ chi tiết và dự toán cụ thể dựa trên lựa chọn vật liệu và yêu cầu của mình.
Hy vọng rằng với những thông tin chi tiết và toàn diện về mẫu nhà vườn 1 tầng này, bạn đã có cái nhìn rõ ràng hơn và tìm được nguồn cảm hứng cho tổ ấm của mình. Hãy bắt đầu hành trình kiến tạo không gian sống xanh mơ ước ngay hôm nay nhé!