Mẫu nhà ống mặt tiền 5m - Giải pháp không gian sống tối ưu

14-07-2025
Chia sẻ

Bạn đang tìm kiếm giải pháp kiến trúc cho mảnh đất có mặt tiền khiêm tốn nhưng vẫn muốn có không gian sống đầy đủ tiện nghi? Những nhà ống mặt tiền 5m chính là lựa chọn hoàn hảo, kết hợp hài hòa giữa thẩm mỹ và công năng.

Ưu điểm của mẫu nhà ống mặt tiền 5m

Mẫu nhà ống có mặt tiền rộng 5m là lựa chọn phổ biến và rất được ưa chuộng ở các thành phố lớn nhờ những ưu điểm nổi bật:

Tối ưu diện tích sử dụng

  • Đây là kích thước mặt tiền vừa đủ để bố trí không gian sống đầy đủ công năng từ phòng khách, bếp, phòng ngủ đến phòng thờ hay sân phơi.
  • Với chiều sâu lớn, nhà ống 5m có thể dễ dàng thiết kế nhiều tầng, tăng diện tích sử dụng hiệu quả cho gia đình đông người hoặc gia đình đa thế hệ.

Dễ dàng quy hoạch và thiết kế

  • Với mặt tiền 5m, kiến trúc sư có nhiều không gian để sáng tạo, tạo hình mặt tiền đa dạng phong cách từ hiện đại, tối giản đến tân cổ điển.
  • Việc chia không gian chức năng theo chiều dài nhà cũng thuận tiện hơn, giúp tối ưu luồng di chuyển và ánh sáng.

Phù hợp với nhiều lô đất phổ biến

  • Tại các khu đô thị lớn, các lô đất thường có mặt tiền dao động từ 4m đến 6m. Mặt tiền 5m là kích thước lý tưởng, dễ dàng tìm kiếm và xây dựng.
  • Giá thành của lô đất 5m mặt tiền thường phù hợp với khả năng tài chính của nhiều gia đình.

Tiết kiệm chi phí xây dựng

  • So với biệt thự hay nhà phố có mặt tiền lớn hơn, nhà ống 5m thường có chi phí xây dựng hợp lý hơn do kết cấu đơn giản và diện tích mặt tiền không quá rộng.
  • Thời gian thi công cũng nhanh hơn, giúp tiết kiệm chi phí nhân công và giám sát.
Tìm hiểu Ưu điểm của mẫu nhà ống mặt tiền 5m
Tìm hiểu Ưu điểm của mẫu nhà ống mặt tiền 5m

Các yếu tố quan trọng cần lưu ý trong thiết kế 

Để có một ngôi nhà ống mặt tiền 5m đẹp, tiện nghi và thông thoáng, bạn cần đặc biệt chú ý đến những yếu tố sau:

Tối ưu ánh sáng và thông gió tự nhiên

  • Mặt tiền đón sáng: Thiết kế cửa sổ lớn, cửa ra vào bằng kính để tận dụng tối đa ánh sáng từ mặt tiền.
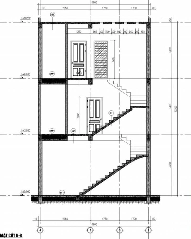
  • Giếng trời: Đây là giải pháp quan trọng cho nhà ống để đưa ánh sáng và không khí vào sâu bên trong nhà, đặc biệt là khu vực cầu thang, phòng bếp.
  • Thông tầng: Tạo không gian thông thoáng, giúp đối lưu không khí tốt hơn giữa các tầng.

Bố trí công năng hợp lý trên từng tầng

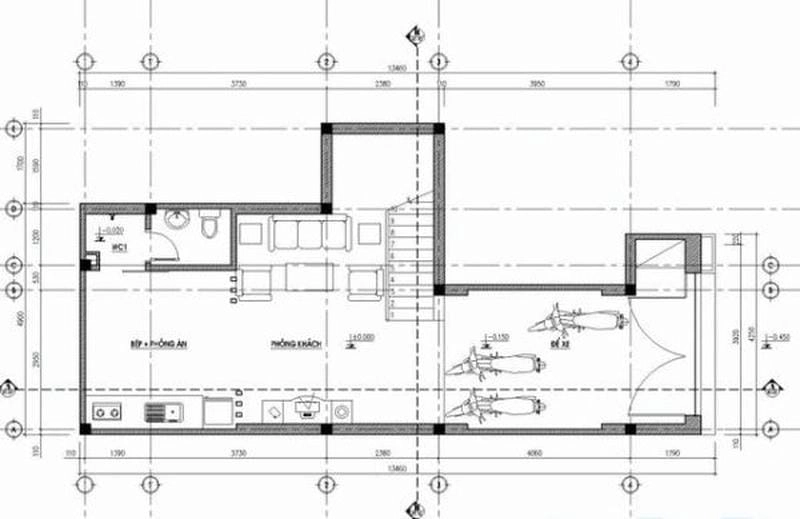
  • Tầng trệt: Thường bố trí gara ô tô (nếu có), phòng khách, phòng bếp + ăn và 1 nhà vệ sinh. Có thể thêm 1 phòng ngủ nhỏ nếu cần.
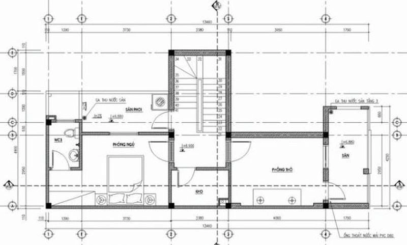
  • Tầng 2: Phòng ngủ, phòng thờ, phòng sinh hoạt chung hoặc phòng làm việc. Các phòng ngủ cần được bố trí hợp lý để đảm bảo riêng tư.
  • Ban công/Logia: Giúp tăng thêm không gian thư giãn, trồng cây xanh và lấy sáng cho mặt tiền.

Lựa chọn phong cách kiến trúc phù hợp

  • Hiện đại: Ưu tiên đường nét thẳng, mảng khối đơn giản, vật liệu như kính, thép, bê tông.
  • Tối giản: Hạn chế chi tiết, tập trung vào công năng, màu sắc trung tính.
  • Tân cổ điển: Có phào chỉ nhẹ nhàng, họa tiết trang trí tinh tế, tạo vẻ sang trọng.

Thiết kế mặt tiền ấn tượng

  • Vật liệu đa dạng: Kết hợp các loại vật liệu như gạch ốp, đá tự nhiên, gỗ nhựa, hoặc lam chắn nắng để tạo điểm nhấn.
  • Màu sắc hài hòa: Sử dụng các tông màu trung tính kết hợp với màu nhấn để tạo sự thu hút.
  • Mảng xanh: Bố trí cây xanh ở ban công, bồn hoa trước nhà để tăng tính thẩm mỹ và sự tươi mát.

>>> Xem thêm tại: Những mẫu cầu thang nhà ống đẹp: Nâng tầm không gian sống

Một số mẫu nhà ống mặt tiền 5m đẹp và phổ biến

mẫu nhà ống 1 tầng mặt tiền 5m thiết kế tinh tế hút ánh nhìn
mẫu nhà ống 1 tầng mặt tiền 5m thiết kế tinh tế hút ánh nhìn
mẫu nhà mặt tiền 5m 2 tầng ý tưởng hiện đại trẻ trung
mẫu nhà mặt tiền 5m 2 tầng ý tưởng hiện đại trẻ trung
mẫu nhà ống mặt tiền 5m 2 tầng phối cảnh đẹp tiện nghi
mẫu nhà ống mặt tiền 5m 2 tầng phối cảnh đẹp tiện nghi
mẫu thiết kế nhà 2 tầng mặt tiền 5m kiến trúc thanh thoát hài hòa
mẫu thiết kế nhà 2 tầng mặt tiền 5m kiến trúc thanh thoát hài hòa
ngang 5m mẫu nhà mặt tiền 5m 2 tầng lựa chọn hợp xu hướng
ngang 5m mẫu nhà mặt tiền 5m 2 tầng lựa chọn hợp xu hướng
mẫu nhà 3 tầng mặt tiền 5m hiện đại tinh tế sang trọng
mẫu nhà 3 tầng mặt tiền 5m hiện đại tinh tế sang trọng
mẫu nhà ống 3 tầng mặt tiền 5m 18m gợi ý không gian tối ưu
mẫu nhà ống 3 tầng mặt tiền 5m 18m gợi ý không gian tối ưu
mẫu nhà mặt tiền 5m 3 tầng thiết kế hiện đại cuốn hút
mẫu nhà mặt tiền 5m 3 tầng thiết kế hiện đại cuốn hút
mặt tiền 5m mẫu nhà ống 3 tầng đẹp 2019 gợi ý phong cách cá tính
mặt tiền 5m mẫu nhà ống 3 tầng đẹp 2019 gợi ý phong cách cá tính
mẫu nhà 3 tầng mặt tiền 5m tân cổ điển phong cách độc đáo cuốn hút
mẫu nhà 3 tầng mặt tiền 5m tân cổ điển phong cách độc đáo cuốn hút
mẫu nhà ống mặt tiền 5m 3 tầng tiện nghi phù hợp xu hướng
mẫu nhà ống mặt tiền 5m 3 tầng tiện nghi phù hợp xu hướng
mẫu nhà mặt tiền 5m 3 tầng 1 tum thiết kế thông minh tiết kiệm diện tích
mẫu nhà mặt tiền 5m 3 tầng 1 tum thiết kế thông minh tiết kiệm diện tích
mẫu nhà 3 tầng mặt tiền 5m đẹp hiện đại kiểu nhà ống đơn giản xu hướng nổi bật hiện nay
mẫu nhà 3 tầng mặt tiền 5m đẹp hiện đại kiểu nhà ống đơn giản xu hướng nổi bật hiện nay
mẫu nhà 30m2 mặt tiền 5m sắp xếp tối ưu không gian sống
mẫu nhà 30m2 mặt tiền 5m sắp xếp tối ưu không gian sống
mẫu nhà 4 tầng mặt tiền 5m sang trọng thoáng đãng cuốn hút
mẫu nhà 4 tầng mặt tiền 5m sang trọng thoáng đãng cuốn hút
mẫu nhà ống 4 tầng mặt tiền 5m không gian sống tiện nghi hiện đại
mẫu nhà ống 4 tầng mặt tiền 5m không gian sống tiện nghi hiện đại
mẫu nhà mặt tiền 5m hiện đại tinh tế phá cách trẻ trung
mẫu nhà mặt tiền 5m hiện đại tinh tế phá cách trẻ trung
mẫu nhà ống mặt tiền 5m lựa chọn được nhiều gia đình yêu thích
mẫu nhà ống mặt tiền 5m lựa chọn được nhiều gia đình yêu thích
mẫu nhà mặt tiền 5m hài hòa cân đối phong cách
mẫu nhà mặt tiền 5m hài hòa cân đối phong cách
mẫu nhà ống mặt tiền 5m tân cổ điển kiến trúc mềm mại sang trọng
mẫu nhà ống mặt tiền 5m tân cổ điển kiến trúc mềm mại sang trọng
các mẫu nhà mặt tiền 5m đẹp gợi ý thiết kế phong cách
các mẫu nhà mặt tiền 5m đẹp gợi ý thiết kế phong cách
mẫu thiết kế nhà ống mặt tiền 5m bố trí không gian tối ưu
mẫu thiết kế nhà ống mặt tiền 5m bố trí không gian tối ưu
mẫu nhà mặt tiền 5m đẹp phù hợp xu hướng hiện đại
mẫu nhà mặt tiền 5m đẹp phù hợp xu hướng hiện đại
mẫu nhà mặt tiền 5m tân cổ điển lựa chọn độc đáo đậm chất riêng
mẫu nhà mặt tiền 5m tân cổ điển lựa chọn độc đáo đậm chất riêng
những mẫu nhà mặt tiền 5m đẹp tham khảo xu hướng mới nhất
những mẫu nhà mặt tiền 5m đẹp tham khảo xu hướng mới nhất
mẫu nhà ống mặt tiền 5m đẹp gợi ý phối cảnh tiện nghi
mẫu nhà ống mặt tiền 5m đẹp gợi ý phối cảnh tiện nghi
mẫu nhà ống hai mặt tiền 5m thoáng đãng ấn tượng nổi bật
mẫu nhà ống hai mặt tiền 5m thoáng đãng ấn tượng nổi bật
mẫu thiết kế nhà mặt tiền 5m lựa chọn thông minh hài hòa
mẫu thiết kế nhà mặt tiền 5m lựa chọn thông minh hài hòa
30 mẫu nhà ống mặt tiền 5m có tầng hầm tối ưu công năng sử dụng
mẫu nhà ống mặt tiền 5m có tầng hầm tối ưu công năng sử dụng
các mẫu nhà ống mặt tiền 5m phong cách thiết kế nổi bật
các mẫu nhà ống mặt tiền 5m phong cách thiết kế nổi bật
mẫu nhà ống đẹp mặt tiền 5m ý tưởng kiến trúc sang trọng
mẫu nhà ống đẹp mặt tiền 5m ý tưởng kiến trúc sang trọng
mẫu nhà 5 tầng mặt tiền 5m lựa chọn tối ưu cho không gian đô thị
mẫu nhà 5 tầng mặt tiền 5m lựa chọn tối ưu cho không gian đô thị

>>> Xem thêm tại: Cột nhà vuông - Điểm nhấn kiến trúc, vững chắc công trình

Chi phí thiết kế nhà ống mặt tiền 5m

Chi phí xây dựng nhà ống mặt tiền 5m phụ thuộc vào nhiều yếu tố, cần được tính toán kỹ lưỡng:

Chi phí thiết kế kiến trúc

  • Thường tính theo m2 xây dựng, dao động tùy thuộc vào độ phức tạp của thiết kế và uy tín của kiến trúc sư/công ty.
  • Bao gồm bản vẽ kiến trúc, kết cấu, điện nước.

Chi phí vật liệu xây dựng

  • Vật liệu thô: Sắt thép, xi măng, cát, đá, gạch... Chiếm tỷ trọng lớn nhất trong tổng chi phí.
  • Vật liệu hoàn thiện: Gạch ốp lát, sơn, cửa, thiết bị vệ sinh, đèn chiếu sáng... Đa dạng về chủng loại và giá cả, ảnh hưởng lớn đến tổng chi phí.

Chi phí nhân công

  • Phụ thuộc vào khu vực xây dựng và trình độ của đội thợ.
  • Có thể tính theo ngày công hoặc theo m2 xây dựng (khoán trọn gói).

Chi phí phát sinh khác

  • Giấy phép xây dựng, chi phí giám sát thi công (nếu có).
  • Chi phí lắp đặt nội thất (nếu khoán trọn gói).
  • Chi phí dự phòng cho các trường hợp bất ngờ.

Để có dự toán chính xác nhất, bạn nên tham khảo ý kiến của các kiến trúc sư, nhà thầu uy tín, cung cấp rõ ràng yêu cầu về phong cách, vật liệu và diện tích mong muốn.

Với những thông tin chi tiết về những nhà ống mặt tiền 5m, từ ưu điểm, lưu ý thiết kế đến các mẫu nhà đẹp và chi phí, hy vọng bạn đã có đủ kiến thức để kiến tạo không gian sống mơ ước của mình.