Mẫu nhà mặt tiền 8m - Sang trọng, tiện nghi, tối ưu không gian
Bạn đang sở hữu lô đất rộng 8m mặt tiền và mong muốn xây dựng một tổ ấm khang trang, hiện đại và đầy đủ tiện nghi? Cùng khám phá những mẫu thiết kế nhà mặt tiền 8m ấn tượng – giải pháp hoàn hảo cho không gian sống mơ ước của bạn.
Đặc điểm mẫu nhà mặt tiền 8m hiện đại
Mẫu nhà mặt tiền 8m là loại hình kiến trúc phổ biến, được nhiều gia đình lựa chọn, đặc biệt ở các khu vực đô thị hoặc ven đô có quỹ đất tương đối rộng. Với chiều rộng 8m, các kiến trúc sư có thể thỏa sức sáng tạo, mang đến nhiều ý tưởng độc đáo và tối ưu công năng hơn so với những lô đất hẹp hơn.
Đặc điểm nổi bật của thiết kế nhà mặt tiền 8m là khả năng tối đa hóa ánh sáng và thông gió tự nhiên nhờ mặt tiền rộng rãi. Điều này giúp các không gian bên trong luôn thoáng đãng, tràn ngập sức sống.
Hơn nữa, mặt tiền 8m cũng đủ lớn để phô diễn các chi tiết kiến trúc độc đáo, kết hợp nhiều phong cách từ hiện đại, tân cổ điển đến mái Thái, mái Nhật, tạo nên vẻ đẹp sang trọng và bề thế cho tổng thể ngôi nhà.
>>> Xem thêm tại: Gợi ý mẫu nhà 1 tầng 3 phòng ngủ hiện đại sang trọng nhất
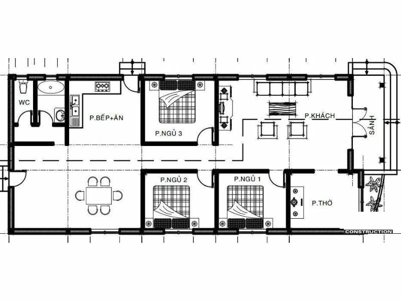
+40 mẫu nhà mặt tiền 8m hiện đại, đẹp nhất 2025

Khám phá mẫu nhà 8x12 có gara tiện nghi cho gia đình
>>> Xem thêm tại: Màu sơn trong nhà - Chọn tông nào đẹp, hợp xu hướng 2025?
Lưu ý khi thiết kế nhà biệt thự mặt tiền 8m
Việc thiết kế một ngôi nhà biệt thự mặt tiền 8m không chỉ đòi hỏi sự sáng tạo mà còn cần tính toán kỹ lưỡng để đảm bảo công năng, thẩm mỹ và sự bền vững.
Tối ưu hóa không gian và công năng sử dụng
Với chiều rộng 8m, bạn có thể dễ dàng bố trí các phòng chức năng. Phân chia hợp lý: Tầng trệt thường là không gian sinh hoạt chung như phòng khách, bếp ăn, có thể thêm một phòng ngủ cho người lớn tuổi. Các tầng trên là không gian riêng tư như phòng ngủ, phòng làm việc, phòng thờ. Tận dụng chiều sâu: Đảm bảo các phòng phía sau vẫn đủ sáng và thông gió bằng cách bố trí giếng trời hoặc khe thoáng. Cầu thang: Nên thiết kế cầu thang hợp lý, không quá chiếm diện tích nhưng vẫn đảm bảo sự thoải mái khi di chuyển.
Đảm bảo ánh sáng và thông gió tự nhiên hiệu quả
Mặt tiền 8m là một lợi thế lớn để đón sáng và gió. Hệ thống cửa: Tận dụng tối đa việc bố trí các cửa sổ lớn, cửa đi bằng kính cường lực cho mặt tiền và các mặt thoáng khác. Giếng trời: Nếu ngôi nhà có chiều sâu lớn, giếng trời ở khu vực giữa nhà là giải pháp tuyệt vời để lấy sáng và thông gió cho các không gian bên trong mà không cần phụ thuộc vào ánh sáng nhân tạo. Mảng xanh: Tích hợp cây xanh vào ban công, sân thượng hoặc các khe thoáng để điều hòa không khí, tăng cường oxy và tạo cảnh quan đẹp mắt.
Lựa chọn vật liệu và màu sắc hài hòa
Vật liệu ngoại thất: Ưu tiên các loại vật liệu bền đẹp, chịu được thời tiết khắc nghiệt và dễ dàng bảo trì như sơn ngoại thất cao cấp, gạch ốp, đá ốp tự nhiên, gỗ nhựa composite. Màu sắc chủ đạo: Nên sử dụng các gam màu sáng, trung tính (trắng, be, xám) để tạo cảm giác rộng rãi, thoáng đãng và hiện đại. Có thể kết hợp các mảng màu nhấn hoặc vật liệu tự nhiên để tạo điểm nhấn. Chống thấm: Đảm bảo hệ thống chống thấm cho mái, ban công và các khu vực tiếp xúc trực tiếp với nước để tránh ẩm mốc, hư hại kết cấu.
Yếu tố phong thủy
Tham khảo ý kiến của chuyên gia phong thủy để lựa chọn hướng nhà, hướng cửa chính, vị trí bếp, phòng thờ, và các phòng ngủ sao cho phù hợp với tuổi và mệnh của gia chủ. Điều này được cho là sẽ mang lại may mắn, tài lộc và sức khỏe cho mọi thành viên.
Chọn đơn vị thiết kế và thi công uy tín
Việc thiết kế và thi công nhà mặt tiền 8m đòi hỏi kiến thức chuyên môn và kinh nghiệm. Hãy tìm kiếm các kiến trúc sư và nhà thầu có uy tín, hồ sơ năng lực tốt để đảm bảo chất lượng công trình, tiến độ thi công và tối ưu chi phí hiệu quả.
Với những thông tin toàn diện về đặc điểm, các mẫu thiết kế hot nhất 2025 và những lưu ý quan trọng khi xây dựng, hy vọng bạn đã có đủ kiến thức để kiến tạo nên mẫu thiết kế nhà mặt tiền 8m vừa sang trọng, tiện nghi, vừa thể hiện phong cách riêng cho tổ ấm của mình.