Mẫu thiết kế nhà chữ L 3 tầng đẹp tối ưu không gian sống

08-07-2025
Chia sẻ

Bạn đang tìm mẫu nhà chữ L 3 tầng đẹp, hiện đại và tối ưu chi phí? Bộ sưu tập sau đây mang đến nhiều ý tưởng thiết kế ấn tượng, phù hợp diện tích đất, nhu cầu sinh hoạt và phong cách sống của gia đình bạn.

Tiêu chí quan trọng khi thiết kế nhà chữ L 3 tầng

Để có một mẫu nhà chữ L 3 tầng đẹp và tối ưu công năng, bạn cần đặc biệt chú ý đến những tiêu chí sau:

  • Bố cục công năng khoa học và linh hoạt:
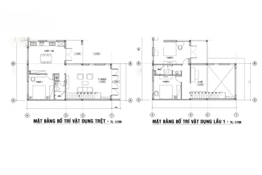
    • Tầng 1: Thường là không gian sinh hoạt chung như phòng khách, bếp, phòng ăn, 1 phòng ngủ (cho người lớn tuổi hoặc khách), nhà vệ sinh chung, và có thể có gara ô tô. Phần góc chữ L lý tưởng để làm sân vườn, tiểu cảnh.
    • Tầng 2: Bố trí 2-3 phòng ngủ, có thể kèm phòng sinh hoạt chung, phòng làm việc hoặc phòng học. Các phòng ngủ nên có ban công riêng để tăng sự thông thoáng.
    • Tầng 3: Thường là phòng thờ, 1-2 phòng ngủ phụ, phòng giặt, sân phơi hoặc sân thượng rộng rãi để thư giãn, trồng cây.
    • Mỗi tầng cần có sự liên kết hợp lý nhưng vẫn đảm bảo sự riêng tư cho các thành viên.
  • Giải pháp lấy sáng và thông gió hiệu quả: Nhờ hình dáng chữ L, ngôi nhà có nhiều mặt thoáng, giúp dễ dàng đón gió và ánh sáng tự nhiên.
    • Khai thác tối đa các góc cạnh: Thiết kế cửa sổ lớn, cửa ra ban công ở nhiều vị trí để tăng cường đối lưu không khí và ánh sáng vào sâu bên trong.
    • Giếng trời (nếu cần): Với những nhà có chiều sâu lớn hoặc muốn tăng cường ánh sáng cho khu vực trung tâm, giếng trời là giải pháp tuyệt vời.
  • Phong cách kiến trúc đa dạng:
    • Hiện đại: Ưu tiên đường nét thẳng, hình khối khỏe khoắn, sử dụng vật liệu như kính, lam nhôm, tạo vẻ trẻ trung, năng động và tối giản.
    • Tân cổ điển: Mang vẻ đẹp sang trọng, quý phái với các chi tiết phào chỉ, cột, hoa văn được giản lược tinh tế, màu sắc trang nhã (trắng, vàng kem).
    • Mái Thái/Mái Nhật: Giúp ngôi nhà trông cao ráo, bề thế hơn, đồng thời tăng khả năng chống nóng, thoát nước hiệu quả cho phần mái.
  • Tận dụng khoảng trống góc chữ L:
    • Sân vườn/Tiểu cảnh: Biến góc chữ L thành không gian xanh mát, là nơi thư giãn, vui chơi, hoặc BBQ ngoài trời.
    • Gara ô tô: Một vị trí lý tưởng để làm gara có mái che hoặc bán lộ thiên, tiện lợi và thẩm mỹ.
    • Hồ bơi nhỏ: Nếu có điều kiện và diện tích đất cho phép, một hồ bơi nhỏ ở góc chữ L sẽ tăng thêm tiện nghi và vẻ sang trọng cho ngôi nhà.
  • Yếu tố phong thủy: Hướng nhà, hướng cửa, vị trí bếp, phòng thờ, phòng ngủ cần được cân nhắc kỹ lưỡng để mang lại vượng khí, tài lộc cho gia chủ. Tránh các lỗi phong thủy như góc nhọn chiếu thẳng vào cửa chính.
Tìm hiểu Tiêu chí quan trọng khi thiết kế nhà chữ L 3 tầng
Tìm hiểu Tiêu chí quan trọng khi thiết kế nhà chữ L 3 tầng

Lợi ích vượt trội của nhà chữ L 3 tầng

Lựa chọn nhà chữ L 3 tầng mang lại nhiều ưu điểm nổi bật, lý giải vì sao kiểu nhà này lại được ưa chuộng:

  • Tối ưu hóa diện tích đất rộng: Với những lô đất có diện tích lớn, đặc biệt là đất góc hoặc đất nở hậu, thiết kế chữ L giúp khai thác triệt để không gian, tránh lãng phí.
  • Tạo không gian sống đa dạng và riêng tư: Ba tầng cùng hình dáng chữ L giúp dễ dàng phân chia các khu vực chức năng riêng biệt, đảm bảo sự riêng tư cho từng thành viên trong gia đình đa thế hệ, đồng thời vẫn có các không gian chung ấm cúng.
  • Gia tăng khả năng đón sáng và thông gió: Nhờ có nhiều mặt thoáng và khoảng trống ở góc chữ L, ngôi nhà luôn tràn ngập ánh sáng tự nhiên và không khí lưu thông tốt, tạo cảm giác thông thoáng, mát mẻ.
  • Mang lại vẻ đẹp kiến trúc độc đáo và sang trọng: Hình dáng chữ L tạo ra những góc nhìn ấn tượng, ban công hay sân thượng độc đáo, giúp ngôi nhà trở nên nổi bật và khác biệt so với các kiểu nhà thông thường.
  • Phù hợp với nhiều phong cách thiết kế: Từ hiện đại, tối giản đến tân cổ điển, kiểu nhà chữ L đều có thể biến hóa linh hoạt, đáp ứng mọi gu thẩm mỹ của gia chủ.
  • Cải thiện phong thủy: Khoảng trống ở góc chữ L giúp tránh được những nhược điểm phong thủy như "óc khuyết", mang lại sự cân bằng và hài hòa cho ngôi nhà.

>>> Xem thêm: Bộ sưu tập mẫu nhà chữ L cấp 4 đẹp giá xây hợp lý

Gợi ý các mẫu nhà chữ L 3 tầng đẹp và được ưa chuộng

Khám phá mẫu nhà chữ l 3 tầng đẹp ở nông thôn tinh tế
Khám phá mẫu nhà chữ l 3 tầng đẹp ở nông thôn tinh tế
Ngắm nhìn mẫu nhà chữ l 3 tầng hiện đại sang trọng
Ngắm nhìn mẫu nhà chữ l 3 tầng hiện đại sang trọng
Chiêm ngưỡng mẫu nhà chữ l 3 tầng mái bằng độc đáo
Chiêm ngưỡng mẫu nhà chữ l 3 tầng mái bằng độc đáo
Khám phá ngay mẫu nhà chữ l 3 tầng đẹp tiện nghi
Khám phá ngay mẫu nhà chữ l 3 tầng đẹp tiện nghi
Tham khảo mẫu nhà chữ l 3 tầng 100m2 hiện đại
Tham khảo mẫu nhà chữ l 3 tầng 100m2 hiện đại
Ngắm mẫu nhà chữ l 3 tầng mái thái đầy cuốn hút
Ngắm mẫu nhà chữ l 3 tầng mái thái đầy cuốn hút
Chiêm ngưỡng mẫu nhà chữ l 3 tầng đẹp nhất tinh tế
Chiêm ngưỡng mẫu nhà chữ l 3 tầng đẹp nhất tinh tế
Khám phá mẫu nhà chữ l 3 tầng đẹp sang trọng
Khám phá mẫu nhà chữ l 3 tầng đẹp sang trọng
Tham khảo các mẫu nhà chữ l 3 tầng đẹp hiện đại
Tham khảo các mẫu nhà chữ l 3 tầng đẹp hiện đại
Ngắm nhìn mẫu nhà chữ l 3 tầng mái thái đẹp độc đáo
Ngắm nhìn mẫu nhà chữ l 3 tầng mái thái đẹp độc đáo
Khám phá mẫu nhà chữ l hiện đại tiện nghi tinh tế
Khám phá mẫu nhà chữ l hiện đại tiện nghi tinh tế
Tham khảo các mẫu nhà chữ l đẹp sang trọng cuốn hút
Tham khảo các mẫu nhà chữ l đẹp sang trọng cuốn hút
Ngắm nhìn mẫu nhà chữ l đẹp nhất tiện nghi
Ngắm nhìn mẫu nhà chữ l đẹp nhất tiện nghi
Khám phá những mẫu nhà chữ l đẹp nhất hiện đại
Khám phá những mẫu nhà chữ l đẹp nhất hiện đại
Chiêm ngưỡng mẫu nhà chữ l thiết kế tiện nghi
Chiêm ngưỡng mẫu nhà chữ l thiết kế tiện nghi
Tham khảo mẫu nhà chữ l đẹp hiện đại tinh tế
Tham khảo mẫu nhà chữ l đẹp hiện đại tinh tế
Ngắm nhìn những mẫu nhà chữ l đẹp tiện nghi
Ngắm nhìn những mẫu nhà chữ l đẹp tiện nghi
Khám phá các mẫu nhà chữ l hiện đại sang trọng
Khám phá các mẫu nhà chữ l hiện đại sang trọng
Tham khảo mẫu nhà chữ l 100m2 tiện nghi hiện đại
Tham khảo mẫu nhà chữ l 100m2 tiện nghi hiện đại
Ngắm nhìn mẫu nhà chữ l đơn giản sang trọng
Ngắm nhìn mẫu nhà chữ l đơn giản sang trọng
Khám phá mẫu nhà chữ l mặt tiền 8m tiện nghi
Khám phá mẫu nhà chữ l mặt tiền 8m tiện nghi
Tham khảo mẫu nhà chữ l đẹp 2020 sang trọng
Tham khảo mẫu nhà chữ l đẹp 2020 sang trọng
Ngắm nhìn mẫu nhà chữ l ngang 6m hiện đại
Ngắm nhìn mẫu nhà chữ l ngang 6m hiện đại
Khám phá mẫu nhà chữ l đẹp giá rẻ tinh tế
Khám phá mẫu nhà chữ l đẹp giá rẻ tinh tế
Tham khảo mẫu nhà chữ l mặt tiền 7m tiện nghi
Tham khảo mẫu nhà chữ l mặt tiền 7m tiện nghi
Ngắm ngay xem mẫu nhà chữ l đẹp hiện đại
Ngắm ngay xem mẫu nhà chữ l đẹp hiện đại
Khám phá mẫu nhà chữ l mái thái tinh tế sang trọng
Khám phá mẫu nhà chữ l mái thái tinh tế sang trọng
Chiêm ngưỡng mẫu nhà chữ l mái nhật sang trọng
Chiêm ngưỡng mẫu nhà chữ l mái nhật sang trọng
Tham khảo mẫu nhà chữ l mái thái nhà đẹp mới sài gòn ấn tượng
Tham khảo mẫu nhà chữ l mái thái nhà đẹp mới sài gòn ấn tượng
Ngắm nhìn mẫu nhà chữ l mái thái đẹp cuốn hút
Ngắm nhìn mẫu nhà chữ l mái thái đẹp cuốn hút

>>> Xem thêm: Ý tưởng thiết kế mẫu nhà phố đẹp hiện đại tinh tế

Những lưu ý quan trọng khi xây nhà chữ L 3 tầng

Để có một ngôi nhà chữ L 3 tầng đẹp, an toàn và bền vững theo thời gian, bạn cần đặc biệt lưu tâm đến những vấn đề sau:

  • Khảo sát địa chất và thiết kế móng vững chắc: Với nhà 3 tầng, tải trọng tác động lên móng là đáng kể. Việc khảo sát địa chất kỹ lưỡng và thiết kế loại móng phù hợp (móng băng, móng cọc, móng bè) là cực kỳ quan trọng để đảm bảo an toàn, chống lún và nứt tường về sau.
  • Giải pháp chống thấm toàn diện: Các góc cạnh của nhà chữ L là nơi dễ bị thấm dột nếu không được xử lý kỹ. Đặc biệt chú ý chống thấm cho các khu vực tiếp giáp giữa tường và mái, ban công, nhà vệ sinh, sân thượng. Sử dụng vật liệu chống thấm chất lượng cao và thi công đúng quy trình.
  • Hệ thống thoát nước cho mái và sân thượng: Đảm bảo hệ thống máng xối và ống thoát nước đủ lớn, có độ dốc phù hợp để nước mưa thoát nhanh chóng, tránh ứ đọng, gây ẩm mốc và hư hại kết cấu.
  • Thiết kế hệ thống cột, dầm, sàn: Cần được tính toán chịu lực kỹ lưỡng, đặc biệt với những ban công lớn hoặc sân thượng có ý định sử dụng cho các hoạt động đông người, trồng cây lớn.
  • Thông gió và chiếu sáng tự nhiên: Dù nhà chữ L có nhiều mặt thoáng, vẫn cần tính toán vị trí cửa sổ, cửa đi, và giếng trời (nếu có) để đảm bảo mọi không gian đều nhận đủ ánh sáng và không khí trong lành, đặc biệt là các phòng nằm sâu bên trong.
  • Lựa chọn vật liệu phù hợp: Ưu tiên vật liệu chất lượng tốt, bền vững, có khả năng cách nhiệt, cách âm và hài hòa với phong cách kiến trúc tổng thể.
  • Lựa chọn đơn vị thiết kế và thi công uy tín: Đây là yếu tố then chốt quyết định chất lượng, an toàn và tính thẩm mỹ của toàn bộ công trình. Hãy tìm những công ty có kinh nghiệm, đội ngũ kiến trúc sư, kỹ sư giỏi và hồ sơ năng lực rõ ràng trong lĩnh vực nhà ở dân dụng.
  • Dự trù kinh phí cẩn thận: Lập bảng dự toán chi tiết, bao gồm cả chi phí phát sinh (thường khoảng 10-15% tổng chi phí) để tránh tình trạng đội vốn ngoài ý muốn.

Hy vọng các mẫu nhà chữ L 3 tầng được chia sẻ sẽ giúp bạn dễ dàng chọn được thiết kế ưng ý nhất. Hãy biến ý tưởng thành hiện thực để xây dựng một không gian sống tiện nghi, sang trọng và đáp ứng mọi nhu cầu của gia đình.