+35 mẫu nhà cấp 4 ngang 8m tối ưu công năng sử dụng

19-07-2025
Chia sẻ

Bạn đang sở hữu một lô đất rộng 8m mặt tiền và mong muốn xây dựng một ngôi nhà cấp 4 vừa đẹp, tiện nghi lại vừa tối ưu chi phí? Cùng tìm hiểu về những mẫu nhà cấp 4 ngang 8m – giải pháp kiến trúc thông minh, mang đến không gian sống thoải mái và ấm cúng cho gia đình bạn.

Đặc điểm nổi bật mẫu nhà cấp 4 ngang 8m đẹp

Nhà cấp 4 ngang 8m là giải pháp lý tưởng cho gia đình có quỹ đất rộng, đặc biệt tại vùng nông thôn hay ngoại ô. Với mặt tiền lớn, kiểu nhà này không chỉ đảm bảo công năng mà còn dễ tạo dấu ấn thẩm mỹ.

Thiết kế mặt tiền rộng rãi, linh hoạt

Chiều ngang 8m giúp kiến trúc sư dễ dàng sáng tạo mặt tiền đẹp mắt. Các yếu tố như cửa sổ lớn, ban công, sân vườn hay hệ mái đa dạng (mái thái, mái nhật, mái bằng) đều dễ áp dụng. Phong cách thiết kế cũng linh hoạt từ hiện đại đến truyền thống.

Phân chia công năng thuận tiện

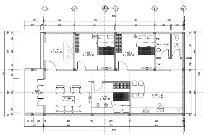
Mặt bằng ngang rộng giúp bố trí phòng ngủ, phòng khách, bếp... hợp lý hơn so với kiểu nhà ống. Không gian sống trở nên thoáng đãng, đón sáng và gió tự nhiên tốt nhờ khả năng mở cửa sổ ở cả hai bên hông nhà.

Phù hợp với mọi độ tuổi

Thiết kế một tầng không cần leo cầu thang, thuận tiện cho người già và trẻ nhỏ. Ngoài ra, chi phí xây dựng và thời gian thi công cũng được tối ưu hơn so với nhà nhiều tầng.

>>> Xem thêm tại: Mẫu biệt thự Indochine - Vẻ đẹp giao thoa Á Âu tinh tế

Mẫu nhà cấp 4 ngang 8m hợp xu hướng nhất hiện nay

mẫu nhà cấp 4 mái thái 8x12m với thiết kế tối ưu hóa không gian sống
mẫu nhà cấp 4 mái thái 8x12m với thiết kế tối ưu hóa không gian sống
Tận dụng diện tích với mẫu nhà cấp 4 mái thái 8x15 đẹp tiện nghi
Tận dụng diện tích với mẫu nhà cấp 4 mái thái 8x15 đẹp tiện nghi
Sáng tạo bố cục trong mẫu nhà cấp 4 mái thái 8x15m phù hợp gia đình trẻ
Sáng tạo bố cục trong mẫu nhà cấp 4 mái thái 8x15m phù hợp gia đình trẻ
Chiêm ngưỡng mẫu nhà cấp 4 mái thái 8x18m rộng rãi thông thoáng
Chiêm ngưỡng mẫu nhà cấp 4 mái thái 8x18m rộng rãi thông thoáng
Sự lựa chọn hợp lý với mẫu nhà cấp 4 mái thái 8x20 sang trọng hiện đại
Sự lựa chọn hợp lý với mẫu nhà cấp 4 mái thái 8x20 sang trọng hiện đại
Thiết kế mái thái cấp 4 đẹp cho không gian sống thoáng mát
Thiết kế mái thái cấp 4 đẹp cho không gian sống thoáng mát
Xu hướng mái thái mẫu nhà cấp 4 đẹp 2020 chưa hạ nhiệt đến nay
Xu hướng mái thái mẫu nhà cấp 4 đẹp 2020 chưa hạ nhiệt đến nay
Phong cách mới lạ với mẫu mái thái nhà cấp 4 đầy đủ tiện nghi
Phong cách mới lạ với mẫu mái thái nhà cấp 4 đầy đủ tiện nghi
Đầu tư hợp lý cùng mẫu mặt tiền nhà cấp 4 mái thái đón nắng gió
Đầu tư hợp lý cùng mẫu mặt tiền nhà cấp 4 mái thái đón nắng gió
Tối ưu không gian với mẫu nhà cấp 4 3 phòng ngủ mái thái tiện nghi
Tối ưu không gian với mẫu nhà cấp 4 3 phòng ngủ mái thái tiện nghi
Tận dụng tối đa diện tích trong mẫu nhà cấp 4 mái thái 3 phòng ngủ hiện đại
Tận dụng tối đa diện tích trong mẫu nhà cấp 4 mái thái 3 phòng ngủ hiện đại
Sống tiện nghi hơn với mẫu nhà cấp 4 mái thái 3 phòng ngủ đẹp
Sống tiện nghi hơn với mẫu nhà cấp 4 mái thái 3 phòng ngủ đẹp
Không gian sống lý tưởng với mẫu nhà cấp 4 mái thái 4 phòng ngủ
Không gian sống lý tưởng với mẫu nhà cấp 4 mái thái 4 phòng ngủ
Ấn tượng với mẫu nhà cấp 4 mái thái 4 phòng ngủ đẹp tại vùng quê
Ấn tượng với mẫu nhà cấp 4 mái thái 4 phòng ngủ đẹp tại vùng quê
Thân thiện thiên nhiên cùng mẫu nhà cấp 4 mái thái nông thôn
Thân thiện thiên nhiên cùng mẫu nhà cấp 4 mái thái nông thôn
Chi phí tiết kiệm với mẫu nhà cấp 4 mái thái rẻ đẹp tiện ích đầy đủ
Chi phí tiết kiệm với mẫu nhà cấp 4 mái thái rẻ đẹp tiện ích đầy đủ
Tinh gọn thanh lịch trong mẫu nhà cấp 4 mái thái đơn giản
Tinh gọn thanh lịch trong mẫu nhà cấp 4 mái thái đơn giản
Không gian mát mẻ với mẫu nhà cấp 4 mái thái đẹp xu hướng mới
Không gian mát mẻ với mẫu nhà cấp 4 mái thái đẹp xu hướng mới
Khám phá mẫu nhà cấp 4 mái thái đẹp 2019 vẫn giữ được sức hút
Khám phá mẫu nhà cấp 4 mái thái đẹp 2019 vẫn giữ được sức hút
Chi phí tối ưu từ mẫu nhà cấp 4 mái thái giá 300 triệu cho gia đình trẻ
Chi phí tối ưu từ mẫu nhà cấp 4 mái thái giá 300 triệu cho gia đình trẻ
Khám phá mẫu nhà cấp 4 mái thái giá rẻ đẹp mắt và đầy đủ công năng
Khám phá mẫu nhà cấp 4 mái thái giá rẻ đẹp mắt và đầy đủ công năng
Thiết kế mở của mẫu nhà cấp 4 mái thái hiện đại giúp tiết kiệm năng lượng
Thiết kế mở của mẫu nhà cấp 4 mái thái hiện đại giúp tiết kiệm năng lượng
Xây dựng dễ dàng với mẫu nhà cấp 4 mái thái 600 triệu phù hợp vùng ven
Xây dựng dễ dàng với mẫu nhà cấp 4 mái thái 600 triệu phù hợp vùng ven
Phong cách trẻ trung từ mẫu nhà cấp 4 mái thái 700 triệu
Phong cách trẻ trung từ mẫu nhà cấp 4 mái thái 700 triệu
Tham khảo mẫu nhà cấp 4 mái thái 2022 đẹp bền vững
Tham khảo mẫu nhà cấp 4 mái thái 2022 đẹp bền vững
Sang trọng tiện nghi cùng mẫu nhà biệt thự cấp 4 mái thái đẳng cấp
Sang trọng tiện nghi cùng mẫu nhà biệt thự cấp 4 mái thái đẳng cấp
Tối giản nhưng đẹp mắt trong mẫu nhà cấp 4 kiểu thái
Tối giản nhưng đẹp mắt trong mẫu nhà cấp 4 kiểu thái
Không gian ấm cúng với mẫu nhà cấp 4 mái thái 2 phòng ngủ tiện lợi
Không gian ấm cúng với mẫu nhà cấp 4 mái thái 2 phòng ngủ tiện lợi
Ấn tượng nhẹ nhàng từ mẫu nhà cấp 4 mái thái 2021
Ấn tượng nhẹ nhàng từ mẫu nhà cấp 4 mái thái 2021
Tiết kiệm chi phí với mẫu nhà cấp 4 mái thái 500 triệu vẫn tiện nghi
Tiết kiệm chi phí với mẫu nhà cấp 4 mái thái 500 triệu vẫn tiện nghi
Trực quan dễ hiểu với mô hình 3d nhà cấp 4 mái thái sống động
Trực quan dễ hiểu với mô hình 3d nhà cấp 4 mái thái sống động
Tham khảo chi tiết từ mô hình nhà cấp 4 mái thái dễ áp dụng thực tế
Tham khảo chi tiết từ mô hình nhà cấp 4 mái thái dễ áp dụng thực tế

>>> Xem thêm tại: Xu hướng thiết kế nhà phố 2 tầng 1 tum hot nhất năm 2025

Kinh nghiệm tối ưu chi phí khi xây nhà cấp 4 ngang 8m

Xây nhà đẹp không nhất thiết phải tốn kém nếu bạn có kế hoạch kỹ lưỡng và lựa chọn thông minh trong từng hạng mục.

Xác định ngân sách và dự trù rõ ràng

Trước khi xây dựng, hãy lập kế hoạch tài chính chi tiết. Phân bổ ngân sách cho thiết kế, vật liệu, nhân công và nội thất. Đừng quên dành ra 10–15% cho các chi phí phát sinh.

Ưu tiên phong cách tối giản

Thiết kế càng đơn giản thì chi phí càng tiết kiệm. Nên hạn chế các chi tiết trang trí cầu kỳ, thay vào đó tập trung vào hình khối rõ ràng, nội thất tinh gọn, tiện dụng và đa năng.

Chọn vật liệu xây dựng phù hợp

  • Vật liệu thô: Ưu tiên sản phẩm có giá hợp lý từ nhà cung cấp uy tín.
  • Vật liệu hoàn thiện: Chọn theo ngân sách, đảm bảo độ bền và tính thẩm mỹ thay vì chạy theo thương hiệu.
  • Mái nhà: Mái tôn hoặc mái thái sẽ rẻ và dễ thi công hơn mái nhật, mái bằng.

Thiết kế không gian hiệu quả

Tối ưu diện tích sử dụng để tránh lãng phí.

  • Hạn chế sảnh và hành lang dư thừa
  • Thiết kế liên thông phòng khách – bếp để mở rộng không gian
  • Cân nhắc thêm gác lửng nếu cần mở rộng mà không muốn tăng tầng

Hợp tác với đơn vị chuyên nghiệp

Chọn kiến trúc sư và nhà thầu uy tín để đảm bảo chất lượng, đúng tiến độ và tiết kiệm chi phí. Bản vẽ thiết kế tối ưu ngay từ đầu sẽ giúp tránh sửa chữa tốn kém trong quá trình xây dựng.

Với những thông tin toàn diện về đặc điểm nổi bật và kinh nghiệm tối ưu chi phí khi xây dựng, hy vọng bạn đã có đủ kiến thức để kiến tạo nên mẫu nhà cấp 4 ngang 8m mơ ước, một tổ ấm vừa đẹp, tiện nghi lại vừa phù hợp với ngân sách của gia đình mình.