Mẫu nhà cấp 4 gác lửng đẹp thoáng mát tiết kiệm đất

09-07-2025
Chia sẻ

Bạn đang tìm mẫu nhà cấp 4 gác lửng đẹp, hiện đại và tiết kiệm chi phí? Bộ sưu tập thiết kế dưới đây sẽ giúp bạn dễ dàng lựa chọn phương án tối ưu diện tích đất, công năng sử dụng và ngân sách, phù hợp với nhu cầu sinh hoạt gia đình.

Nhà cấp 4 gác lửng là gì?

Nhà cấp 4 gác lửng, hay còn gọi là nhà cấp 4 có gác xép hoặc nhà cấp 4 có lửng, là loại hình nhà ở chỉ có một tầng trệt nhưng được thiết kế thêm một tầng lửng (tầng trung gian) ở phía trên. Tầng lửng này thường không chiếm toàn bộ diện tích sàn mà chỉ một phần nhỏ, có chiều cao thấp hơn tầng trệt và được bố trí linh hoạt cho các mục đích sử dụng khác nhau.

Tìm hiểu về Nhà cấp 4 gác lửng là gì
Tìm hiểu về Nhà cấp 4 gác lửng là gì trước khi lựa chọn

Ưu và nhược điểm của nhà cấp 4 gác lửng

Mẫu nhà cấp 4 gác lửng mang lại nhiều lợi ích đáng kể, nhưng cũng có một vài hạn chế bạn cần cân nhắc kỹ lưỡng.

Ưu điểm:

  • Tối ưu diện tích sử dụng: Đây là ưu điểm lớn nhất. Tầng lửng giúp tăng thêm đáng kể diện tích sàn mà không cần xây thêm tầng chính, rất phù hợp với những lô đất có diện tích nhỏ hẹp. Bạn có thể tận dụng để làm phòng ngủ phụ, phòng thờ, phòng làm việc, kho chứa đồ hoặc không gian sinh hoạt chung.
  • Tiết kiệm chi phí xây dựng: So với việc xây nhà 2 tầng, chi phí xây dựng nhà cấp 4 gác lửng thấp hơn đáng kể vì không tốn kém nhiều cho móng, kết cấu chịu lực, và vật liệu cho tầng trên.
  • Thời gian thi công nhanh chóng: Cấu trúc không quá phức tạp giúp rút ngắn thời gian thi công, bạn có thể sớm dọn vào tổ ấm mới.
  • Tạo không gian đa năng, linh hoạt: Tầng lửng mang đến sự linh hoạt trong bố trí công năng, giúp ngôi nhà trở nên tiện nghi và đa dạng hơn.
  • Tăng tính thẩm mỹ và độc đáo: Gác lửng tạo điểm nhấn kiến trúc độc đáo, giúp không gian nội thất trở nên ấn tượng và có chiều sâu hơn so với nhà cấp 4 thông thường.
  • Phù hợp với nhiều phong cách: Dù là nhà cấp 4 gác lửng hiện đại, tối giản hay mái Thái, mái Nhật, gác lửng đều có thể được tích hợp hài hòa.
  • Vẫn giữ được nét ấm cúng của nhà cấp 4: Dù có thêm tầng lửng, ngôi nhà vẫn giữ được sự gần gũi, ấm cúng và thuận tiện di chuyển trên một mặt sàn chính.

Nhược điểm:

  • Chiều cao tầng lửng hạn chế: Chiều cao của tầng lửng thường thấp hơn tầng trệt, có thể gây cảm giác hơi bí hoặc bất tiện nếu không được thiết kế hợp lý.
  • Vấn đề thông gió và ánh sáng (nếu không tính toán kỹ): Nếu gác lửng che khuất quá nhiều không gian hoặc không có giải pháp thông gió tốt, khu vực bên dưới và trên gác lửng có thể bị bí bách, thiếu sáng.
  • Cầu thang chiếm diện tích: Dù là cầu thang nhỏ, nó vẫn chiếm một phần diện tích sàn nhất định.
  • Hạn chế số lượng phòng: Mặc dù tăng diện tích, số lượng phòng riêng tư trên gác lửng thường không nhiều bằng nhà 2 tầng.
  • Có thể gây cảm giác ngột ngạt nếu thiết kế không tinh tế: Nếu không gian gác lửng quá lớn hoặc bố trí đồ đạc bừa bộn, có thể làm ngôi nhà trông chật chội hơn.

>>> Xem thêm: Xu hướng mẫu nhà phố mặt tiền 4-5m hot nhất hiện nay

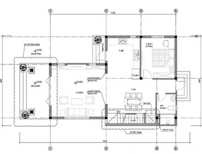
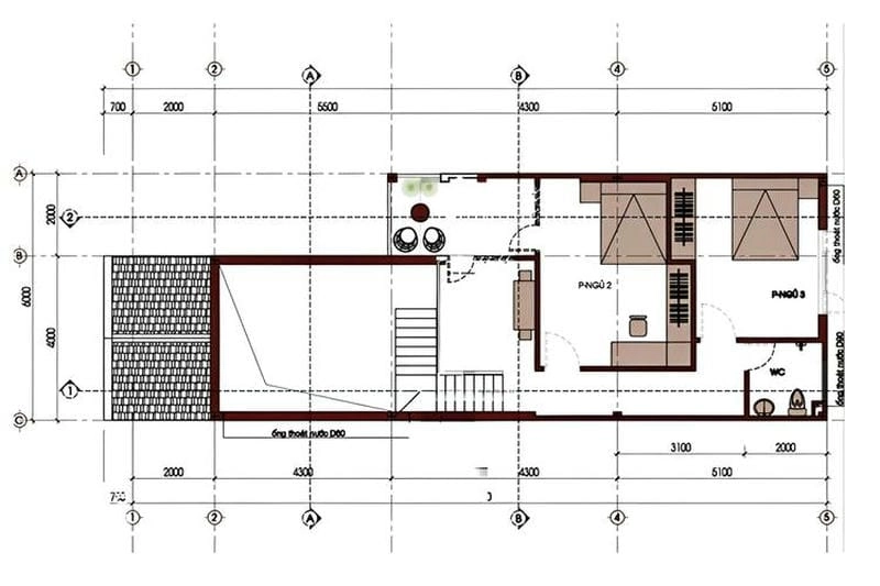
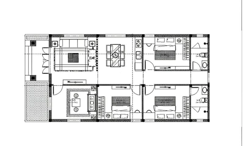
Gợi ý các mẫu nhà cấp 4 gác lửng đẹp

Khám phá mẫu nhà cấp 4 gác lửng tiện nghi
Khám phá mẫu nhà cấp 4 gác lửng tiện nghi
Chọn ngay mẫu nhà cấp 4 gác lửng đẹp
Chọn ngay mẫu nhà cấp 4 gác lửng đẹp
Tham khảo mẫu nhà cấp 4 gác lửng rộng rãi
Tham khảo mẫu nhà cấp 4 gác lửng rộng rãi
Gợi ý mẫu nhà cấp 4 gác lửng thoáng đãng
Gợi ý mẫu nhà cấp 4 gác lửng thoáng đãng
Ngắm nhìn mẫu nhà cấp 4 gác lửng tiện lợi
Ngắm nhìn mẫu nhà cấp 4 gác lửng tiện lợi
Lựa chọn mẫu nhà cấp 4 gác lửng tiết kiệm
Lựa chọn mẫu nhà cấp 4 gác lửng tiết kiệm
Khám phá mẫu nhà cấp 4 gác lửng nhỏ gọn
Khám phá mẫu nhà cấp 4 gác lửng nhỏ gọn
Tham khảo mẫu nhà cấp 4 gác lửng giá tốt
Tham khảo mẫu nhà cấp 4 gác lửng giá tốt
Chọn mẫu nhà cấp 4 gác lửng đẹp mắt
Chọn mẫu nhà cấp 4 gác lửng đẹp mắt
Khám phá mẫu nhà cấp 4 gác lửng tiện nghi
Khám phá mẫu nhà cấp 4 gác lửng tiện nghi
Ngắm ngay mẫu nhà cấp 4 gác lửng hiện đại
Ngắm ngay mẫu nhà cấp 4 gác lửng hiện đại
Tham khảo mẫu nhà cấp 4 gác lửng tinh tế
Tham khảo mẫu nhà cấp 4 gác lửng tinh tế
Khám phá mẫu nhà cấp 4 gác lửng thông minh
Khám phá mẫu nhà cấp 4 gác lửng thông minh
Ngắm nhìn mẫu nhà cấp 4 gác lửng nhỏ xinh
Ngắm nhìn mẫu nhà cấp 4 gác lửng nhỏ xinh
Chọn mẫu nhà cấp 4 gác lửng rộng rãi
Chọn mẫu nhà cấp 4 gác lửng rộng rãi
Khám phá mẫu nhà cấp 4 gác lửng đầy đủ công năng
Khám phá mẫu nhà cấp 4 gác lửng đầy đủ công năng
Ngắm ngay mẫu nhà cấp 4 gác lửng cuốn hút
Ngắm ngay mẫu nhà cấp 4 gác lửng cuốn hút
Tham khảo mẫu nhà cấp 4 gác lửng tối ưu diện tích
Tham khảo mẫu nhà cấp 4 gác lửng tối ưu diện tích
Khám phá mẫu nhà cấp 4 gác lửng sang trọng
Khám phá mẫu nhà cấp 4 gác lửng sang trọng
Ngắm nhìn mẫu nhà cấp 4 gác lửng tiện nghi
Ngắm nhìn mẫu nhà cấp 4 gác lửng tiện nghi
Khám phá mẫu nhà cấp 4 gác lửng hút mắt
Khám phá mẫu nhà cấp 4 gác lửng hút mắt
Tham khảo mẫu nhà cấp 4 gác lửng rộng thoáng
Tham khảo mẫu nhà cấp 4 gác lửng rộng thoáng
Chọn mẫu nhà cấp 4 gác lửng hiện đại
Chọn mẫu nhà cấp 4 gác lửng hiện đại
Khám phá mẫu nhà cấp 4 gác lửng tiện nghi
Khám phá mẫu nhà cấp 4 gác lửng tiện nghi
Ngắm ngay mẫu nhà cấp 4 gác lửng đẹp
Ngắm ngay mẫu nhà cấp 4 gác lửng đẹp
Tham khảo mẫu nhà cấp 4 gác lửng đa dạng
Tham khảo mẫu nhà cấp 4 gác lửng đa dạng
Khám phá mẫu nhà cấp 4 gác lửng mới lạ
Khám phá mẫu nhà cấp 4 gác lửng mới lạ
Chọn mẫu nhà cấp 4 gác lửng nhỏ xinh
Chọn mẫu nhà cấp 4 gác lửng nhỏ xinh
Ngắm mẫu nhà cấp 4 gác lửng tinh tế
Ngắm mẫu nhà cấp 4 gác lửng tinh tế
Khám phá mẫu nhà cấp 4 gác lửng tiện lợi
Khám phá mẫu nhà cấp 4 gác lửng tiện lợi
Tham khảo mẫu nhà cấp 4 gác lửng trẻ trung
Tham khảo mẫu nhà cấp 4 gác lửng trẻ trung
Ngắm nhìn mẫu nhà cấp 4 gác lửng thoáng đãng
Ngắm nhìn mẫu nhà cấp 4 gác lửng thoáng đãng
Khám phá mẫu nhà cấp 4 gác lửng độc đáo
Khám phá mẫu nhà cấp 4 gác lửng độc đáo

>>> Xem thêm: Mẫu nhà phố mặt tiền đẹp - Kiến tạo dấu ấn riêng cho tổ ấm

Chi phí xây dựng nhà cấp 4 gác lửng

Chi phí xây dựng một mẫu nhà cấp 4 gác lửng là yếu tố quan trọng mà mọi gia chủ đều quan tâm. Mức đầu tư này sẽ phụ thuộc vào nhiều yếu tố:

  • Diện tích xây dựng (cả trệt và gác lửng): Tổng diện tích sàn là yếu tố chính quyết định chi phí. Mặc dù tầng lửng thường tính theo hệ số (ví dụ 50-70% diện tích sàn chính), tổng diện tích vẫn tăng lên.
  • Phong cách kiến trúc và độ phức tạp của thiết kế:
    • Hiện đại/Tối giản: Thường có chi phí hợp lý hơn do ít chi tiết phức tạp, tập trung vào hình khối.
    • Thiết kế cầu kỳ: Nếu gác lửng có nhiều chi tiết trang trí, lan can phức tạp, hoặc vật liệu đặc biệt, chi phí sẽ tăng lên.
  • Vật liệu xây dựng và hoàn thiện:
    • Phần thô: Gạch, thép, xi măng... chiếm phần lớn chi phí. Đặc biệt là kết cấu sàn gác lửng (sàn gỗ, sàn bê tông nhẹ, sàn đổ giả...).
    • Phần hoàn thiện: Gạch ốp lát, sơn, cửa, thiết bị vệ sinh, đèn chiếu sáng, đồ nội thất... Lựa chọn vật liệu cao cấp sẽ làm tăng đáng kể tổng chi phí.
    • Vật liệu làm cầu thang lên gác lửng (gỗ, sắt, bê tông...) cũng ảnh hưởng đến chi phí.
  • Loại mái nhà:
    • Mái Thái/Mái Nhật: Thường có chi phí nhỉnh hơn mái bằng do kết cấu phức tạp hơn.
    • Mái bằng: Chi phí thấp hơn nhưng cần chú trọng chống thấm.
  • Nội thất đi kèm: Chi phí cho đồ nội thất (bàn ghế, giường tủ, kệ bếp...), thiết bị gia dụng... cũng là một phần không nhỏ trong tổng mức đầu tư.
  • Vị trí địa lý và điều kiện thi công: Chi phí nhân công và vận chuyển vật liệu có thể chênh lệch giữa các khu vực.
  • Đơn vị thi công: Các nhà thầu khác nhau sẽ có báo giá và chất lượng dịch vụ khác nhau (đơn giá xây trọn gói, đơn giá phần thô,...).

Ước tính sơ bộ: Đơn giá xây dựng phần thô và nhân công hoàn thiện cho mẫu nhà cấp 4 gác lửng thường dao động khoảng 4.5 - 6.5 triệu đồng/m² (tùy thuộc vào vật liệu và mức độ hoàn thiện). Với diện tích sàn trệt khoảng 60m² - 100m² và diện tích gác lửng 30m² - 50m², tổng chi phí xây dựng có thể từ 350 triệu đến 900 triệu đồng trở lên. Để có con số chính xác nhất, bạn nên có bản vẽ thiết kế chi tiết và nhận báo giá từ các đơn vị thi công uy tín.

Hy vọng những mẫu nhà cấp 4 gác lửng được chia sẻ sẽ giúp bạn tìm ra thiết kế ưng ý nhất. Hãy chọn phương án phù hợp để xây dựng không gian sống tiện nghi, hiện đại và thoải mái, đáp ứng nhu cầu của gia đình bạn.