Xu hướng mẫu nhà cấp 4 2 phòng ngủ đẹp ấn tượng 2025
Bạn đang tìm mẫu nhà cấp 4 2 phòng ngủ đẹp, tiện nghi và tiết kiệm chi phí? Bộ sưu tập thiết kế sau đây sẽ mang đến nhiều ý tưởng phù hợp nhu cầu sinh hoạt, diện tích đất và ngân sách của gia đình bạn.
Đặc điểm nổi bật của mẫu nhà cấp 4 2 phòng ngủ
Bạn có bao giờ tự hỏi điều gì khiến các mẫu nhà cấp 4 2 phòng ngủ trở nên phổ biến đến vậy không? Dưới đây là những đặc điểm nổi bật mà bạn cần biết:
- Diện tích vừa phải: Các mẫu nhà này thường có diện tích xây dựng không quá lớn, dao động từ khoảng 60m² đến 100m² tùy theo cách bố trí và nhu cầu của gia đình. Điều này giúp tối ưu hóa chi phí đất và xây dựng.
- Bố cục hợp lý: Với 2 phòng ngủ, không gian còn lại thường dành cho phòng khách, bếp ăn và nhà vệ sinh. Các kiến trúc sư sẽ khéo léo sắp xếp để tạo sự liên thông, thoáng đãng, tận dụng tối đa diện tích.
- Phù hợp với gia đình nhỏ: Đây là giải pháp lý tưởng cho các gia đình có 3-4 thành viên, hoặc những người muốn có một không gian riêng tư nhưng vẫn ấm cúng.
- Đa dạng phong cách: Từ hiện đại, tối giản đến tân cổ điển hay kiểu mái Thái, mái Nhật, bạn hoàn toàn có thể tìm thấy một phong cách ưng ý cho ngôi nhà của mình.
- Dễ dàng thi công và bảo trì: Cấu trúc một tầng giúp quá trình xây dựng diễn ra nhanh chóng, đồng thời việc vệ sinh, bảo dưỡng cũng đơn giản hơn nhiều so với nhà nhiều tầng.
Ưu điểm vượt trội của nhà cấp 4 2 phòng ngủ
Không phải ngẫu nhiên mà nhà cấp 4 có 2 phòng ngủ lại được nhiều người "săn đón" đến vậy. Dưới đây là những ưu điểm nổi bật giúp bạn đưa ra quyết định:
- Tối ưu chi phí xây dựng: Đây là ưu điểm lớn nhất. So với các mẫu nhà lớn hơn hay nhà cao tầng, chi phí đầu tư cho nhà cấp 4 2 phòng ngủ thường thấp hơn đáng kể, từ vật liệu, nhân công đến thời gian thi công.
- Thời gian hoàn thiện nhanh: Cấu trúc đơn giản giúp rút ngắn thời gian thi công, bạn sẽ sớm được dọn về ngôi nhà mới của mình.
- Không gian sống ấm cúng, gắn kết: Ngôi nhà một tầng tạo cảm giác gần gũi, giúp các thành viên trong gia đình dễ dàng kết nối và tương tác với nhau hơn.
- Tiện lợi cho mọi lứa tuổi: Không có cầu thang, rất an toàn và thuận tiện cho người già, trẻ nhỏ hoặc người có vấn đề về di chuyển.
- Dễ dàng mở rộng hoặc cải tạo: Khi có nhu cầu, bạn có thể dễ dàng cơi nới, thêm gác lửng hoặc cải tạo lại các không gian mà không gặp quá nhiều khó khăn.
- Linh hoạt về địa điểm xây dựng: Các mẫu nhà này phù hợp cả ở khu vực thành thị (với lô đất nhỏ) hay nông thôn (với không gian rộng rãi hơn để làm sân vườn).
>>> Xem thêm tại: Top mẫu nhà cấp 4 gác lửng đẹp hiện đại đáng xây nhất
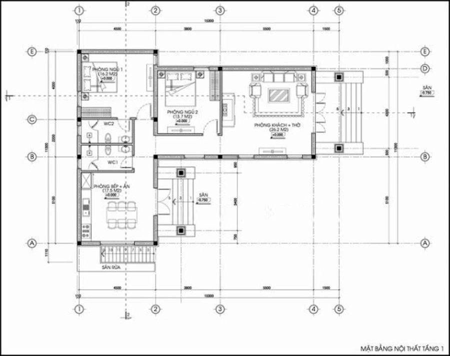
Gợi ý các mẫu nhà cấp 4 2 phòng ngủ đẹp và tiện nghi

>>> Xem thêm tại: Xu hướng xây nhà cấp 4 mái Nhật đẹp ấn tượng 2025
Lưu ý quan trọng khi xây dựng mẫu nhà cấp 4 2 phòng ngủ
Để ngôi nhà cấp 4 2 phòng ngủ của bạn thực sự hoàn hảo, hãy ghi nhớ những lưu ý quan trọng dưới đây:
- Lựa chọn vị trí và hướng nhà: Ưu tiên những vị trí cao ráo, thoáng đãng, tránh xa khu vực ô nhiễm. Hướng nhà nên hợp phong thủy và đón gió mát vào mùa hè, tránh nắng gắt chiếu trực tiếp vào phòng ngủ.
- Thiết kế bố trí công năng hợp lý: Dù diện tích không quá lớn, việc sắp xếp các phòng (khách, bếp, 2 phòng ngủ, vệ sinh) cần khoa học để tối ưu không gian và thuận tiện cho sinh hoạt. Hãy tham khảo ý kiến kiến trúc sư để có bản vẽ tối ưu nhất.
- Dự trù kinh phí chi tiết: Lập bảng dự toán chi phí cụ thể cho từng hạng mục (thiết kế, vật liệu thô, vật liệu hoàn thiện, nhân công, nội thất...). Điều này giúp bạn kiểm soát tốt ngân sách và tránh phát sinh ngoài ý muốn.
- Chọn nhà thầu thi công uy tín: Đây là yếu tố cực kỳ quan trọng quyết định chất lượng và độ bền của ngôi nhà. Hãy tìm hiểu kỹ các đơn vị có kinh nghiệm, tham khảo công trình họ đã thực hiện và ký hợp đồng rõ ràng.
- Lưu ý về hệ thống điện nước: Đảm bảo hệ thống điện nước được thiết kế và lắp đặt an toàn, khoa học, phù hợp với nhu cầu sử dụng của gia đình.
- Sử dụng vật liệu phù hợp: Chọn vật liệu chất lượng tốt, bền đẹp và phù hợp với điều kiện khí hậu. Nếu có thể, tận dụng vật liệu địa phương để tiết kiệm chi phí.
- Chống nóng, chống thấm cho mái và tường: Đặc biệt quan trọng với nhà cấp 4, việc chống nóng cho mái (nếu là mái tôn) và chống thấm cho tường giúp ngôi nhà luôn mát mẻ, khô ráo và bền đẹp theo thời gian.
Hy vọng những mẫu nhà cấp 4 2 phòng ngủ được giới thiệu sẽ giúp bạn chọn được thiết kế phù hợp nhất. Hãy hiện thực hóa ý tưởng tổ ấm mơ ước với không gian sống hiện đại, thoải mái và đáp ứng mọi nhu cầu gia đình.