Top mẫu nhà 2 tầng chữ L đẹp hiện đại nhất 2025

21-07-2025
Chia sẻ

Bạn đang tìm kiếm một giải pháp kiến trúc độc đáo, giúp tối ưu diện tích đất nhưng vẫn đảm bảo sự thông thoáng và tiện nghi cho ngôi nhà? Cùng tìm hiểu về nhà 2 tầng chữ L – lựa chọn thông minh, mang đến không gian sống thoải mái và thẩm mỹ cho gia đình bạn.

Ưu điểm của nhà 2 tầng chữ L

Nhà 2 tầng chữ L được nhiều gia đình lựa chọn nhờ thiết kế linh hoạt, phù hợp với các lô đất không vuông vức, đặc biệt ở vùng ngoại ô và nông thôn.

Tận dụng tốt diện tích và tạo sân vườn

Kiểu dáng chữ L giúp chừa ra một khoảng trống lý tưởng để bố trí sân vườn, tiểu cảnh hoặc gara ô tô. Đây là điểm cộng lớn với những ai yêu thích không gian sống gần gũi thiên nhiên, cần khoảng sân rộng rãi để thư giãn hoặc trồng cây.

Tăng khả năng đón gió và ánh sáng

So với các kiểu nhà hình khối kín, nhà chữ L có nhiều mặt thoáng, giúp các phòng đều có thể mở cửa sổ đón nắng và gió tự nhiên. Nhờ đó, không khí trong nhà luôn lưu thông tốt, tiết kiệm điện và tạo cảm giác dễ chịu hơn cho gia chủ.

Thiết kế thẩm mỹ, sáng tạo

Về kiến trúc, nhà 2 tầng chữ L mang vẻ đẹp hiện đại, phá cách. Hình khối không bị đơn điệu, dễ tạo điểm nhấn ở phần góc chữ L – nơi có thể bố trí sảnh, tiểu cảnh hoặc hồ cá. Đây là mẫu nhà có tính cá nhân hóa cao, phù hợp nhiều phong cách thiết kế từ hiện đại đến cổ điển.

>>> Xem thêm tại: Bí quyết xây nhà cấp 4 giá dưới 1 tỷ đẹp tiện nghi

+35 mẫu thiết kế nhà 2 tầng chữ L đẹp

Khám phá mẫu nhà 2 tầng hình chữ l đẹp hiện đại và tiện nghi
Khám phá mẫu nhà 2 tầng hình chữ l đẹp hiện đại và tiện nghi
Không gian sống ấn tượng với mẫu nhà 2 tầng hình chữ l hiện đại
Không gian sống ấn tượng với mẫu nhà 2 tầng hình chữ l hiện đại
Top mẫu thiết kế mẫu nhà 2 tầng hình chữ l đẹp mắt và tiết kiệm
Top mẫu thiết kế mẫu nhà 2 tầng hình chữ l đẹp mắt và tiết kiệm
Gợi ý mẫu nhà 2 tầng chữ l ở nông thôn đẹp thanh lịch
Gợi ý mẫu nhà 2 tầng chữ l ở nông thôn đẹp thanh lịch
Cập nhật xu hướng mới với mẫu nhà 2 tầng chữ l đẹp 2022
Cập nhật xu hướng mới với mẫu nhà 2 tầng chữ l đẹp 2022
Tổng hợp mẫu nhà 2 tầng chữ l đẹp 2021 phong cách tối giản
Tổng hợp mẫu nhà 2 tầng chữ l đẹp 2021 phong cách tối giản
Thiết kế tối ưu không gian với mẫu nhà 2 tầng chữ l đẹp 2020
Thiết kế tối ưu không gian với mẫu nhà 2 tầng chữ l đẹp 2020
Tuyển chọn những mẫu nhà 2 tầng chữ l đẹp đáng tham khảo
Tuyển chọn những mẫu nhà 2 tầng chữ l đẹp đáng tham khảo
Thiết kế tiết kiệm chi phí với mẫu nhà 2 tầng chữ l đơn giản
Thiết kế tiết kiệm chi phí với mẫu nhà 2 tầng chữ l đơn giản
Trải nghiệm không gian xanh cùng mẫu nhà 2 tầng chữ l nông thôn
Trải nghiệm không gian xanh cùng mẫu nhà 2 tầng chữ l nông thôn
Tăng giá trị ngôi nhà với mẫu nhà 2 tầng chữ l hiện đại tiện nghi
Tăng giá trị ngôi nhà với mẫu nhà 2 tầng chữ l hiện đại tiện nghi
Thiết kế thông minh cho mẫu nhà 2 tầng chữ l 90m2 tiện dụng
Thiết kế thông minh cho mẫu nhà 2 tầng chữ l 90m2 tiện dụng
Bố trí hài hòa với mẫu nhà 2 tầng chữ l 4 phòng ngủ
Bố trí hài hòa với mẫu nhà 2 tầng chữ l 4 phòng ngủ
Không gian rộng rãi với mẫu nhà 2 tầng chữ l 120m2 sang trọng
Không gian rộng rãi với mẫu nhà 2 tầng chữ l 120m2 sang trọng
Khám phá ngay bộ sưu tập mẫu nhà 2 tầng chữ l mới nhất
Khám phá ngay bộ sưu tập mẫu nhà 2 tầng chữ l mới nhất
Thiết kế hợp lý với mẫu nhà 2 tầng chữ l 100m2 cho gia đình trẻ
Thiết kế hợp lý với mẫu nhà 2 tầng chữ l 100m2 cho gia đình trẻ
Tạo ấn tượng đầu tiên với mẫu mặt tiền nhà 2 tầng chữ l
Tạo ấn tượng đầu tiên với mẫu mặt tiền nhà 2 tầng chữ l
Tham khảo ngay các mẫu thiết kế nhà chữ l đa dạng phong cách
Tham khảo ngay các mẫu thiết kế nhà chữ l đa dạng phong cách
Tối ưu diện tích cùng các mẫu thiết kế nhà 2 tầng hình chữ l
Tối ưu diện tích cùng các mẫu thiết kế nhà 2 tầng hình chữ l
Tổng hợp các mẫu nhà đẹp 2 tầng hình chữ l đáng xây dựng
Tổng hợp các mẫu nhà đẹp 2 tầng hình chữ l đáng xây dựng
Định hình xu hướng với các mẫu nhà chữ l 2 tầng đẹp ấn tượng
Định hình xu hướng với các mẫu nhà chữ l 2 tầng đẹp ấn tượng
Top ý tưởng từ các mẫu nhà chữ l 2 tầng đáng chú ý
Top ý tưởng từ các mẫu nhà chữ l 2 tầng đáng chú ý
Tham khảo chi phí xây nhà 2 tầng chữ l để lên kế hoạch hiệu quả
Tham khảo chi phí xây nhà 2 tầng chữ l để lên kế hoạch hiệu quả
Gợi ý thiết kế từ các mẫu nhà 2 tầng chữ l đẹp được yêu thích
Gợi ý thiết kế từ các mẫu nhà 2 tầng chữ l đẹp được yêu thích
Thiết kế đẳng cấp cùng biệt thự 2 tầng chữ l sang trọng
Thiết kế đẳng cấp cùng biệt thự 2 tầng chữ l sang trọng
Phong cách hiện đại với biệt thự chữ l 2 tầng đầy tiện nghi
Phong cách hiện đại với biệt thự chữ l 2 tầng đầy tiện nghi
Không gian gọn gàng với thiết kế nhà chữ l 2 tầng 80m2
Không gian gọn gàng với thiết kế nhà chữ l 2 tầng 80m2
Lên ý tưởng với thiết kế nhà 2 tầng chữ l 4 phòng ngủ khoa học
Lên ý tưởng với thiết kế nhà 2 tầng chữ l 4 phòng ngủ khoa học
Chiêm ngưỡng bản thiết kế nhà chữ l tinh tế và hiện đại
Chiêm ngưỡng bản thiết kế nhà chữ l tinh tế và hiện đại
Tối ưu không gian với bản thiết kế nhà 2 tầng chữ l độc đáo
Tối ưu không gian với bản thiết kế nhà 2 tầng chữ l độc đáo
Khám phá bản thiết kế nhà chữ l 2 tầng phù hợp nông thôn và phố
Khám phá bản thiết kế nhà chữ l 2 tầng phù hợp nông thôn và phố
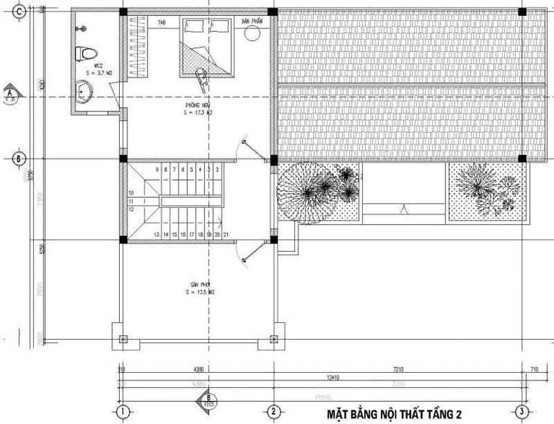
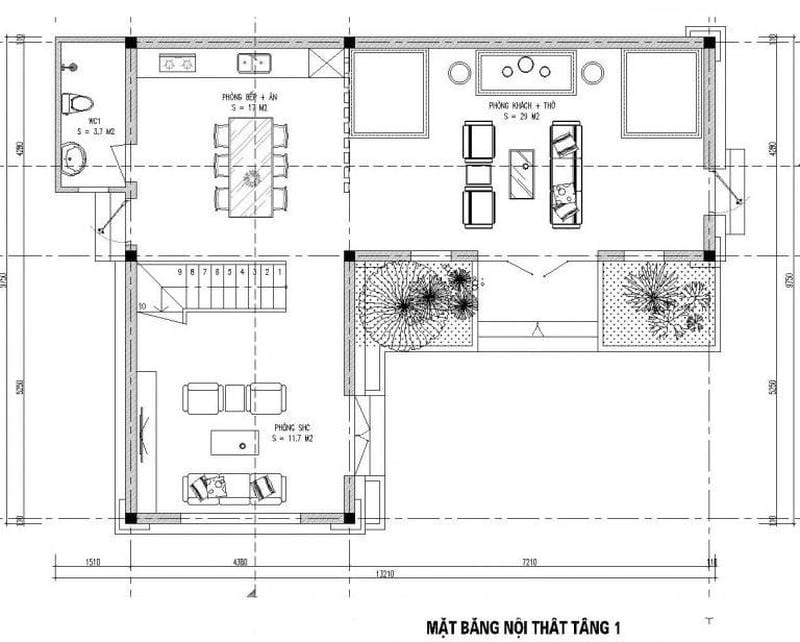
Tham khảo chi tiết bản vẽ nhà 2 tầng chữ l đầy đủ công năng
Tham khảo chi tiết bản vẽ nhà 2 tầng chữ l đầy đủ công năng
Gợi ý bản vẽ nhà 2 tầng chữ l đẹp tiết kiệm chi phí xây dựng
Gợi ý bản vẽ nhà 2 tầng chữ l đẹp tiết kiệm chi phí xây dựng
Định hướng không gian với bản vẽ nhà 2 tầng hình chữ l
Định hướng không gian với bản vẽ nhà 2 tầng hình chữ l

>>> Xem thêm tại: Những mẫu nhà ống 2 tầng 1 tum sang trọng hợp xu hướng

Lưu ý khi thiết kế thi công nhà 2 tầng chữ L

Để có một nhà 2 tầng chữ L đẹp, bền vững, tiện nghi và hợp phong thủy, bạn cần nắm vững những lưu ý quan trọng trong quá trình thiết kế và thi công.

Bố trí công năng khoa học

Việc bố trí công năng hợp lý là yếu tố then chốt cho nhà 2 tầng chữ L. Tầng 1 thường sẽ bố trí các không gian chung như phòng khách, phòng bếp, phòng ăn và có thể có 1 phòng ngủ cho người lớn tuổi. Tầng 2 là nơi đặt các phòng ngủ còn lại, phòng thờ, phòng sinh hoạt chung hoặc phòng làm việc. Cần đảm bảo sự kết nối giữa các không gian nhưng vẫn giữ được sự riêng tư cần thiết. Đặc biệt, khu vực góc chữ L cần được tính toán kỹ để không bị tối hay khó bố trí đồ đạc.

Tối ưu ánh sáng và thông gió tự nhiên

Mặc dù có lợi thế về thông thoáng, bạn vẫn cần tối ưu ánh sáng và thông gió cho nhà 2 tầng chữ L.

Cửa sổ lớn: Thiết kế nhiều cửa sổ lớn ở các mặt tiếp giáp với sân vườn hoặc không gian mở.

Giếng trời: Nếu nhà có chiều sâu lớn, nên bố trí giếng trời ở khu vực cầu thang hoặc giữa nhà để lấy sáng và thông gió cho khu vực trung tâm.

Cây xanh: Tận dụng khoảng sân chữ L để trồng cây xanh, tạo bóng mát, giúp không khí trong lành và giảm nhiệt cho ngôi nhà.

Lựa chọn phong cách kiến trúc và vật liệu

Phong cách kiến trúc của nhà 2 tầng chữ L có thể rất đa dạng.

Hiện đại: Đường nét đơn giản, vật liệu kính, bê tông, thép.

Mái thái/Mái Nhật: Tạo vẻ đẹp truyền thống hoặc tân cổ điển, phù hợp với khí hậu Việt Nam. Hãy lựa chọn vật liệu xây dựng bền đẹp, phù hợp với điều kiện khí hậu. Cân nhắc sử dụng các loại gạch ốp, sơn màu ngoại thất hài hòa với tổng thể kiến trúc và cảnh quan xung quanh.

Đảm bảo yếu tố phong thủy

Trong phong thủy, nhà 2 tầng chữ L cần được lưu ý để tránh "khuyết góc".

Bổ sung góc khuyết: Có thể hóa giải bằng cách đặt cây xanh, tiểu cảnh, đèn chiếu sáng hoặc xây thêm một phần nhỏ ở góc chữ L để tạo thành hình vuông vắn hoặc chữ nhật, mang lại sự cân bằng.

Hướng nhà, hướng cửa: Đảm bảo phù hợp với tuổi và mệnh của gia chủ để thu hút vượng khí, tài lộc.

Tránh góc nhọn: Không để góc chữ L chĩa thẳng vào cửa chính hoặc các phòng quan trọng khác.

Hợp tác với kiến trúc sư chuyên nghiệp

Để có một nhà 2 tầng chữ L hoàn hảo, độc đáo và bền vững, việc hợp tác với kiến trúc sư có kinh nghiệm là vô cùng quan trọng. Họ sẽ giúp bạn:

Lên ý tưởng thiết kế: Phù hợp với diện tích, nhu cầu và ngân sách.

Tính toán kết cấu: Đảm bảo an toàn và tối ưu vật liệu.

Giải quyết vấn đề phong thủy: Đưa ra giải pháp hóa giải các điểm bất lợi.

Giám sát thi công: Đảm bảo công trình đạt chất lượng và đúng tiến độ.

Với những thông tin toàn diện về ưu điểm và lưu ý quan trọng khi thiết kế, hy vọng bạn đã có đủ kiến thức để kiến tạo nên nhà 2 tầng chữ L mơ ước, một tổ ấm vừa tối ưu không gian, tiện nghi lại vừa hiện đại và đầy phong cách cho gia đình mình.