Mẫu nhà 1 triệt hiện đại đơn giản sang trọng xu hướng mới
Bạn đang tìm kiếm một mẫu nhà 1 triệt hiện đại vừa đẹp vừa tối ưu chi phí? Bộ sưu tập dưới đây sẽ giúp bạn lựa chọn được thiết kế ưng ý với phong cách trẻ trung, không gian mở thoáng đãng và công năng tiện nghi cho gia đình.
Ưu và nhược điểm của nhà 1 trệt hiện đại
Nhà 1 trệt theo phong cách hiện đại đang ngày càng được ưa chuộng nhờ những đặc trưng nổi bật. Tuy nhiên, cũng như mọi loại hình kiến trúc, chúng có cả ưu và nhược điểm riêng.
Ưu điểm
- Tối ưu công năng, tiện nghi: Thiết kế hiện đại chú trọng vào việc tận dụng tối đa không gian, loại bỏ những chi tiết rườm rà, giúp ngôi nhà trở nên gọn gàng, khoa học.
- Chi phí xây dựng hợp lý: So với nhà nhiều tầng, việc thi công nhà 1 trệt thường đơn giản hơn, giảm bớt chi phí về móng, cột, và vật tư cho các tầng trên.
- Thích hợp với mọi đối tượng: Đặc biệt lý tưởng cho gia đình có trẻ nhỏ và người lớn tuổi vì không có cầu thang, đảm bảo an toàn tuyệt đối khi di chuyển.
- Dễ dàng kết nối không gian: Mẫu nhà này dễ dàng tạo sự liên kết giữa các khu vực chức năng (phòng khách, bếp, phòng ăn) và kết nối với không gian sân vườn bên ngoài.
- Thân thiện với môi trường: Dễ dàng áp dụng các giải pháp kiến trúc xanh, tận dụng ánh sáng tự nhiên và thông gió, giúp tiết kiệm năng lượng.
- Tính thẩm mỹ cao: Phong cách hiện đại mang lại vẻ đẹp tinh tế, sang trọng, không lỗi thời theo thời gian.
Nhược điểm
- Yêu cầu diện tích đất lớn: Để đảm bảo đủ không gian sinh hoạt và thiết kế theo phong cách hiện đại, nhà 1 trệt thường cần một khu đất có diện tích tương đối rộng.
- Hạn chế chiều cao: Không có nhiều tầng, tầm nhìn từ trong nhà ra bên ngoài có thể bị hạn chế hơn so với nhà cao tầng.
- Khó mở rộng quy mô: Nếu sau này gia đình có nhu cầu tăng thêm số phòng hoặc diện tích sử dụng, việc cơi nới hoặc thêm tầng sẽ gặp nhiều khó khăn.
>>> Xem thêm: Xu hướng mẫu nhà có tầng trệt đẹp nổi bật năm 2025
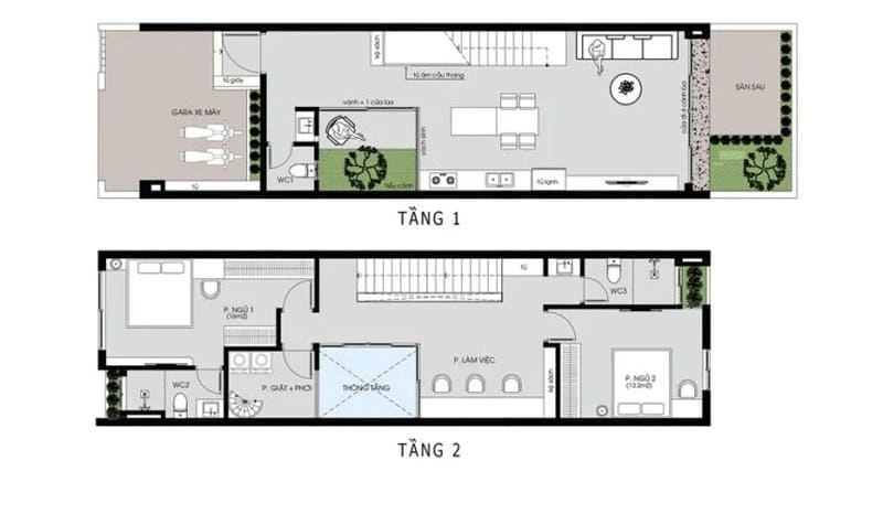
Gợi ý các mẫu nhà 1 trệt hiện đại đẹp, ấn tượng

>>> Xem thêm: Mẫu nhà 1 tầng trệt đẹp thoáng mát tiện nghi sang
Những yếu tố ảnh hưởng đến chi phí xây nhà 1 trệt hiện đại
Chi phí xây dựng luôn là một trong những mối quan tâm hàng đầu của gia chủ. Với mẫu nhà 1 trệt hiện đại, các yếu tố sau đây sẽ tác động trực tiếp đến tổng ngân sách bạn cần chuẩn bị:
- Diện tích xây dựng: Đây là yếu tố cơ bản nhất. Diện tích mặt sàn càng lớn, chi phí vật liệu và nhân công càng tăng theo.
- Vị trí địa lý: Giá nhân công và vật liệu xây dựng có sự khác biệt rõ rệt giữa các vùng miền, thành phố lớn và nông thôn.
- Phong cách và độ phức tạp của thiết kế: Một thiết kế hiện đại nhưng có nhiều đường nét độc đáo, vật liệu đặc biệt hoặc yêu cầu kỹ thuật cao sẽ tốn kém hơn.
- Chất lượng vật liệu: Việc lựa chọn vật liệu hoàn thiện từ bình dân đến cao cấp như gạch ốp lát, sơn, thiết bị vệ sinh, cửa... sẽ ảnh hưởng lớn đến tổng chi phí.
- Nội thất: Nếu tính cả chi phí nội thất, ngân sách sẽ tăng lên đáng kể tùy thuộc vào phong cách và vật liệu nội thất bạn chọn.
- Nhà thầu thi công: Mỗi nhà thầu có mức báo giá khác nhau tùy vào uy tín, kinh nghiệm và chính sách giá của họ.
Để có dự trù kinh phí chính xác, bạn nên làm việc với kiến trúc sư và nhà thầu để có bản vẽ thiết kế chi tiết và bảng báo giá vật tư, nhân công cụ thể.
Hy vọng những gợi ý mẫu nhà 1 triệt hiện đại trên sẽ truyền cảm hứng để bạn chọn được phương án phù hợp. Hãy cân nhắc kỹ nhu cầu, diện tích và ngân sách để có ngôi nhà mơ ước thật hài hòa, tiện nghi và ấn tượng.