Mẫu nhà 1 tầng trệt đẹp thoáng mát tiện nghi sang

09-07-2025
Chia sẻ

Bạn đang tìm mẫu nhà 1 tầng trệt đẹp, hiện đại và tiết kiệm chi phí? Những gợi ý thiết kế dưới đây sẽ mang đến nhiều ý tưởng ấn tượng, phù hợp diện tích đất, công năng sử dụng và nhu cầu sinh hoạt, tạo nên không gian sống tiện nghi cho gia đình.

Nhà 1 tầng trệt là gì?

Nhà 1 tầng trệt là loại hình nhà ở chỉ có duy nhất một tầng nằm sát mặt đất. Toàn bộ không gian sinh hoạt chính như phòng khách, bếp, phòng ăn, phòng ngủ đều được bố trí trên cùng một mặt sàn. Đây là kiểu nhà phổ biến ở cả thành thị và nông thôn.

Khám phá khái niệm Nhà 1 tầng trệt là gì
Chi tiết khái niệm Nhà 1 tầng trệt là gì

Có nên xây nhà 1 tầng trệt?

Quyết định xây nhà 1 tầng trệt phụ thuộc vào nhiều yếu tố như nhu cầu sử dụng, ngân sách và diện tích đất. Cùng tìm hiểu kỹ hơn về những ưu và nhược điểm để xem đây có phải là lựa chọn phù hợp với bạn không nhé!

Ưu điểm nổi bật:

  • Chi phí xây dựng thấp: Tiết kiệm đáng kể chi phí móng, kết cấu, vật liệu và nhân công so với nhà nhiều tầng.
  • Thời gian thi công nhanh chóng: Cấu trúc đơn giản giúp rút ngắn thời gian hoàn thiện.
  • Tiện lợi tối đa cho sinh hoạt: Mọi hoạt động diễn ra trên cùng một mặt sàn, an toàn và thuận tiện cho mọi thành viên trong gia đình, đặc biệt là người già và trẻ nhỏ.
  • Dễ dàng kết nối với không gian sân vườn: Dễ dàng mở ra các khoảng sân, vườn, tạo không gian sống gần gũi thiên nhiên.
  • Linh hoạt trong thiết kế mặt bằng: Dễ dàng bố trí các phòng chức năng theo dạng không gian mở.
  • Dễ dàng sửa chữa, cải tạo: Bảo trì, sửa chữa đơn giản và ít tốn kém hơn.
  • Khả năng thông gió và lấy sáng tốt: Ngôi nhà sẽ luôn thoáng mát và tràn ngập ánh sáng tự nhiên nếu được thiết kế hợp lý.

Nhược điểm cần lưu ý:

  • Yêu cầu diện tích đất lớn: Để đủ không gian sinh hoạt, nhà 1 tầng trệt thường cần diện tích đất tương đối rộng.
  • Thiếu không gian riêng tư (đối với nhà mặt tiền): Có thể bị ảnh hưởng bởi tiếng ồn và sự nhìn ngó từ bên ngoài.
  • Dễ bị ảnh hưởng bởi ẩm mốc, côn trùng: Cần có giải pháp chống thấm, chống ẩm tốt.
  • Hạn chế về tầm nhìn: Tầm nhìn từ nhà 1 tầng trệt thường không rộng bằng nhà nhiều tầng.

Những lưu ý quan trọng khi xây mẫu nhà 1 tầng trệt

Để kiến tạo một mẫu nhà 1 tầng trệt đẹp, tiện nghi và bền vững, bạn cần đặc biệt chú ý đến những điểm sau trong quá trình thiết kế và thi công:

  • Tối ưu hóa không gian và công năng: Phân chia các khu vực chức năng khoa học, ưu tiên không gian mở giữa phòng khách, bếp và ăn.
  • Tận dụng ánh sáng tự nhiên và thông gió: Bố trí nhiều cửa sổ, cửa đi lớn và sử dụng vật liệu kính để tối đa hóa ánh sáng và luồng gió.
  • Lựa chọn kiểu mái phù hợp: Cân nhắc giữa mái Thái, mái Nhật, mái bằng hay mái lệch tùy theo phong cách và nhu cầu.
  • Giải pháp chống ẩm mốc và thấm dột: Nền và tường cần được xử lý chống thấm triệt để, có thể nâng cao nền nhà.
  • Đảm bảo an ninh: Hệ thống cửa chính, cửa sổ cần chắc chắn, có thể lắp thêm khóa an toàn hoặc camera.
  • Lựa chọn vật liệu và màu sắc: Ưu tiên vật liệu bền, dễ vệ sinh, và các gam màu sáng để tạo cảm giác rộng rãi.
  • Yếu tố phong thủy: Hướng nhà, hướng cửa, vị trí bếp, phòng ngủ cần được cân nhắc hợp mệnh gia chủ.
  • Tìm đơn vị thiết kế và thi công uy tín: Đảm bảo có bản vẽ tối ưu và chất lượng công trình.

>>> Xem thêm: Mẫu nhà mái thái cấp 4 - Vẻ đẹp sang trọng cho gia đình

Gợi ý các mẫu nhà 1 tầng trệt đẹp và được ưa chuộng

mẫu nhà 1 trệt 1 lầu 5x20 thiết kế thoáng đẹp cho gia đình Việt
mẫu nhà 1 trệt 1 lầu 5x20 thiết kế thoáng đẹp cho gia đình Việt
mẫu nhà 1 trệt 1 lầu 5x15 kiểu dáng gọn gàng dễ bố trí
mẫu nhà 1 trệt 1 lầu 5x15 kiểu dáng gọn gàng dễ bố trí
mẫu nhà 1 trệt 1 lầu đẹp hài hòa tiện nghi thu hút ánh nhìn
mẫu nhà 1 trệt 1 lầu đẹp hài hòa tiện nghi thu hút ánh nhìn
mẫu nhà 1 trệt 1 lầu dưới 1 tỷ gợi ý tiết kiệm chi phí xây dựng
mẫu nhà 1 trệt 1 lầu dưới 1 tỷ gợi ý tiết kiệm chi phí xây dựng
mẫu nhà 1 trệt 1 lầu đẹp 5x20 phù hợp lô đất rộng thoáng mát
mẫu nhà 1 trệt 1 lầu đẹp 5x20 phù hợp lô đất rộng thoáng mát
mẫu nhà 1 trệt 1 lầu hiện đại phong cách sang trọng hợp xu hướng
mẫu nhà 1 trệt 1 lầu hiện đại phong cách sang trọng hợp xu hướng
ngang 5m mẫu nhà 1 trệt 1 lầu 5x20 thiết kế tối ưu diện tích nhỏ
ngang 5m mẫu nhà 1 trệt 1 lầu 5x20 thiết kế tối ưu diện tích nhỏ
mẫu nhà 1 trệt 1 lầu 5x15 3 phòng ngủ đủ tiện nghi cho gia đình trẻ
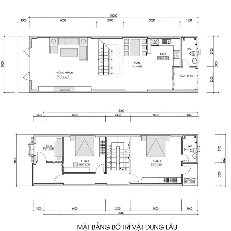
các mẫu nhà 1 trệt 1 lầu 6 x 15 được ưa chuộng bởi thiết kế thông minh
các mẫu nhà 1 trệt 1 lầu 6 x 15 được ưa chuộng bởi thiết kế thông minh
mẫu nhà 1 trệt 1 lầu 5x20 4 phòng ngủ không gian rộng rãi thoải mái
mẫu nhà 1 trệt 1 lầu 5x20 4 phòng ngủ không gian rộng rãi thoải mái
5x20m mẫu nhà 1 trệt 1 lầu 5x20 bố trí hợp lý tiết kiệm diện tích
5x20m mẫu nhà 1 trệt 1 lầu 5x20 bố trí hợp lý tiết kiệm diện tích
mẫu nhà 1 trệt 1 lầu ở nông thôn gần gũi hài hòa với thiên nhiên
mẫu nhà 1 trệt 1 lầu ở nông thôn gần gũi hài hòa với thiên nhiên
mẫu nhà 1 trệt 1 lầu 5x15 giá bao nhiêu tham khảo chi phí dễ tính toán
mẫu nhà 1 trệt 1 lầu 5x15 giá bao nhiêu tham khảo chi phí dễ tính toán
5x15m mẫu nhà 1 trệt 1 lầu 5x15 lựa chọn hợp cho đất phố nhỏ
5x15m mẫu nhà 1 trệt 1 lầu 5x15 lựa chọn hợp cho đất phố nhỏ
phí xây mẫu nhà 1 trệt 1 lầu 5x15 dự trù ngân sách hợp lý
phí xây mẫu nhà 1 trệt 1 lầu 5x15 dự trù ngân sách hợp lý
mẫu nhà 1 trệt 1 lửng 1 lầu 4x12 tối ưu diện tích cho gia đình nhỏ
mẫu nhà 1 trệt 1 lửng 1 lầu 4x12 tối ưu diện tích cho gia đình nhỏ
mẫu nhà 1 trệt 1 lầu đẹp 4x20 phong cách hiện đại dễ xây dựng
mẫu nhà 1 trệt 1 lầu đẹp 4x20 phong cách hiện đại dễ xây dựng
mẫu nhà 1 trệt 1 lửng 1 lầu 4x16 tận dụng diện tích hẹp hợp lý
mẫu nhà 1 trệt 1 lửng 1 lầu 4x16 tận dụng diện tích hẹp hợp lý
lầu 5x20m mẫu nhà 1 trệt 1 lầu 5x20 thích hợp cho nhà phố mặt tiền
lầu 5x20m mẫu nhà 1 trệt 1 lầu 5x20 thích hợp cho nhà phố mặt tiền
mẫu nhà 1 trệt 1 lửng 1 lầu 5x15 thông minh tiết kiệm không gian
mẫu nhà 1 trệt 1 lửng 1 lầu 5x15 thông minh tiết kiệm không gian
mẫu nhà 1 trệt 1 lầu 1 tum đẹp phong cách hiện đại phù hợp xu hướng
mẫu nhà 1 trệt 1 lầu 1 tum đẹp phong cách hiện đại phù hợp xu hướng
mẫu nhà 1 trệt 1 lầu đơn giản tinh tế hài hòa dễ xây dựng
mẫu nhà 1 trệt 1 lầu đơn giản tinh tế hài hòa dễ xây dựng
mẫu nhà 1 trệt 1 lầu 3 phòng ngủ thiết kế tiện nghi khoa học
mẫu nhà 1 trệt 1 lầu 3 phòng ngủ thiết kế tiện nghi khoa học
mẫu nhà 1 trệt 1 lầu 8x15 không gian rộng thoáng dễ bố trí
mẫu nhà 1 trệt 1 lầu 8x15 không gian rộng thoáng dễ bố trí
mẫu nhà 1 trệt 1 lửng 1 lầu 4x10 tận dụng tối đa diện tích nhỏ
mẫu nhà 1 trệt 1 lửng 1 lầu 4x10 tận dụng tối đa diện tích nhỏ
mẫu nhà 1 trệt 1 lầu 1 tum thiết kế hiện đại tiết kiệm đất
mẫu nhà 1 trệt 1 lầu 1 tum thiết kế hiện đại tiết kiệm đất
mẫu nhà 1 trệt 1 lầu 5x17 lựa chọn phù hợp nhà phố Việt
mẫu nhà 1 trệt 1 lầu 5x17 lựa chọn phù hợp nhà phố Việt
mẫu nhà 1 trệt 1 lầu tân cổ điển kết hợp hài hòa sang trọng tinh tế
mẫu nhà 1 trệt 1 lầu tân cổ điển kết hợp hài hòa sang trọng tinh tế
mẫu nhà 1 trệt 1 lầu giá rẻ giải pháp tiết kiệm chi phí hợp lý
mẫu nhà 1 trệt 1 lầu giá rẻ giải pháp tiết kiệm chi phí hợp lý
mẫu nhà 1 trệt 1 lầu có sân thượng mở rộng không gian sống thoải mái
mẫu nhà 1 trệt 1 lầu có sân thượng mở rộng không gian sống thoải mái
mẫu nhà 1 trệt 1 lầu 2 mặt tiền sang trọng thoáng đãng hút mắt
mẫu nhà 1 trệt 1 lầu 2 mặt tiền sang trọng thoáng đãng hút mắt
mẫu nhà 1 trệt 1 lầu 6x14 kiểu dáng đẹp mắt dễ thi công
mẫu nhà 1 trệt 1 lầu 6x14 kiểu dáng đẹp mắt dễ thi công

>>> Xem thêm: Xu hướng mẫu nhà có tầng trệt đẹp nổi bật năm 2025

Chi phí xây dựng nhà 1 tầng trệt

Chi phí xây dựng một mẫu nhà 1 tầng trệt là một trong những yếu tố quan trọng hàng đầu mà gia chủ quan tâm. Mức đầu tư này sẽ phụ thuộc vào:

  • Diện tích xây dựng: Càng rộng, chi phí càng cao.
  • Phong cách kiến trúc: Hiện đại, tối giản thường tiết kiệm hơn; cổ điển, tân cổ điển hoặc thiết kế phức tạp sẽ tốn kém hơn.
  • Vật liệu xây dựng và hoàn thiện: Vật liệu cao cấp sẽ tăng đáng kể tổng chi phí.
  • Nội thất đi kèm: Đồ nội thất và thiết bị gia dụng cũng là một khoản đáng kể.
  • Vị trí địa lý và điều kiện thi công: Chi phí nhân công và vận chuyển vật liệu có thể chênh lệch.
  • Đơn vị thi công: Báo giá và chất lượng dịch vụ khác nhau.

Ước tính sơ bộ: Đơn giá xây dựng phần thô và nhân công hoàn thiện cho mẫu nhà 1 tầng trệt thường dao động khoảng 4.0 - 6.5 triệu đồng/m². Với diện tích sàn khoảng 60m² – 120m², tổng chi phí xây dựng có thể từ 240 triệu đến 780 triệu đồng trở lên. Để có con số chính xác nhất, bạn nên có bản vẽ thiết kế chi tiết và nhận báo giá từ các đơn vị thi công uy tín.

Hy vọng những mẫu nhà 1 tầng trệt đẹp được chia sẻ sẽ giúp bạn tìm được thiết kế ưng ý nhất. Hãy chọn phương án phù hợp để xây dựng không gian sống hiện đại, tiện nghi và mang lại sự thoải mái, hài hòa cho cả gia đình bạn.