99+ bản vẽ nhà 2 tầng đẹp hiện đại và tối ưu công năng

22-07-2025
Chia sẻ

Bạn đang tìm kiếm bản vẽ nhà 2 tầng để xây dựng tổ ấm lý tưởng? Những thiết kế thông minh, tối ưu diện tích và chi phí sẽ giúp bạn dễ dàng hình dung, lên kế hoạch và thi công hiệu quả hơn.

Ưu điểm của mẫu bản vẽ nhà 2 tầng

Mẫu nhà 2 tầng là lựa chọn lý tưởng cho các gia đình hiện đại nhờ khả năng tối ưu không gian, chi phí và tính thẩm mỹ.

Trước hết, nhà 2 tầng tận dụng tốt diện tích đất, nhất là với những lô đất hẹp hoặc nhỏ. Nhờ xây cao thay vì mở rộng bề ngang, bạn có thể tạo thêm nhiều không gian sinh hoạt mà không cần diện tích nền lớn.

Thứ hai, thiết kế 2 tầng giúp phân chia rõ ràng các khu vực sinh hoạt. Tầng trệt thường dành cho không gian chung như phòng khách, bếp, ăn, còn tầng trên là nơi nghỉ ngơi riêng tư cho các thành viên, đảm bảo sự thoải mái và tiện nghi.

Về mặt thẩm mỹ, nhà 2 tầng cho phép sáng tạo với nhiều phong cách thiết kế. Từ hiện đại đến cổ điển, việc kết hợp ban công, mái ngói, lam che nắng hay vật liệu ốp giúp ngôi nhà nổi bật và ấn tượng hơn.

Cuối cùng, so với nhà cao tầng, nhà 2 tầng có chi phí xây dựng hợp lý, thời gian thi công nhanh, nhưng vẫn đáp ứng đầy đủ công năng cho gia đình đông người.

>>> Xem thêm tại: Trang trí mẫu vách tivi phòng khách chuẩn xu hướng mới

Một số mẫu bản vẽ nhà 2 tầng đẹp, công năng đầy đủ

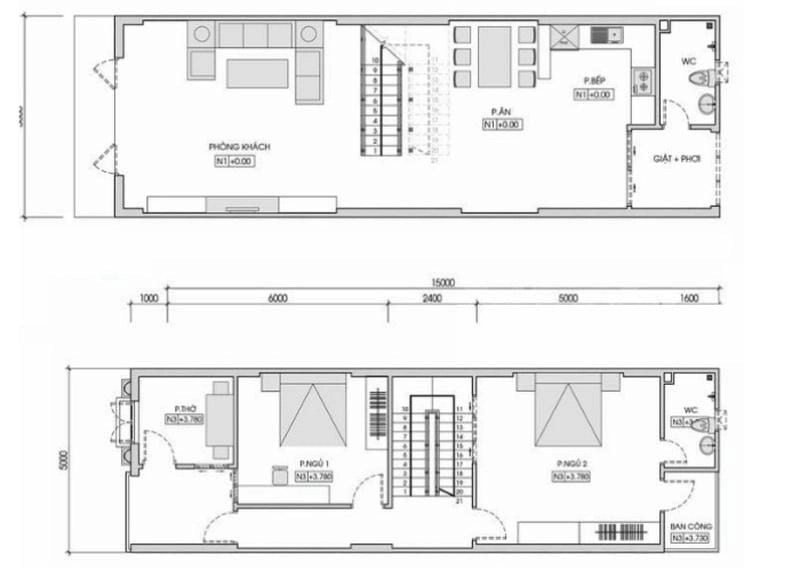
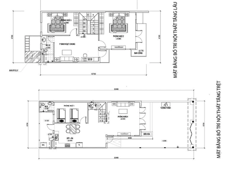
Khám phá bản vẽ thiết kế nhà ống ấn tượng từng chi tiết
Khám phá bản vẽ thiết kế nhà ống ấn tượng từng chi tiết
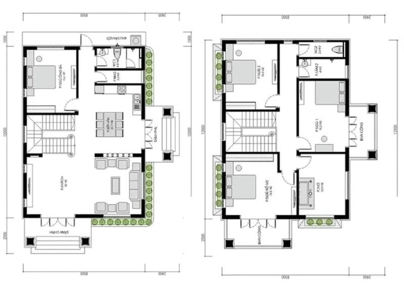
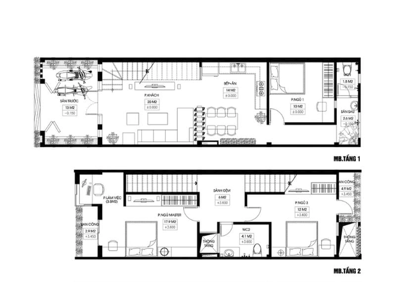
Tổng hợp bản vẽ nhà ống 2 tầng đẹp chuẩn hiện đại
Tổng hợp bản vẽ nhà ống 2 tầng đẹp chuẩn hiện đại
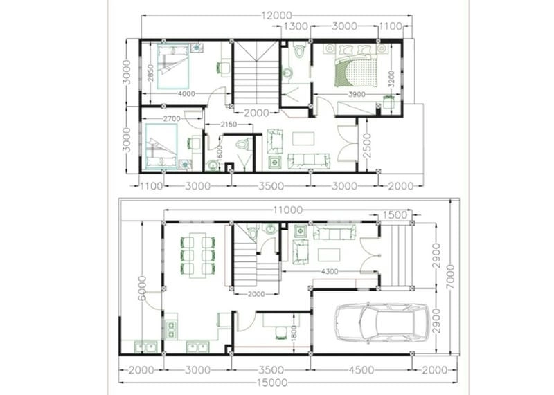
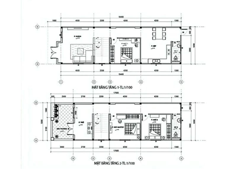
Chiêm ngưỡng bản vẽ mẫu nhà ống 2 tầng độc đáo và tiện nghi
Chiêm ngưỡng bản vẽ mẫu nhà ống 2 tầng độc đáo và tiện nghi
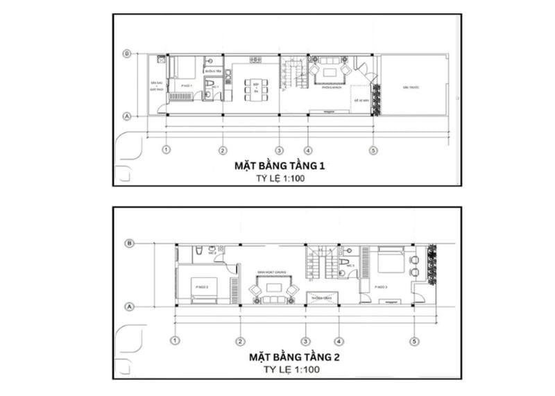
Trọn bộ bản vẽ chi tiết nhà ống 2 tầng đầy đủ công năng
Trọn bộ bản vẽ chi tiết nhà ống 2 tầng đầy đủ công năng
Tải ngay bản thiết kế nhà ống 2 tầng hài hòa diện tích
Tải ngay bản thiết kế nhà ống 2 tầng hài hòa diện tích
Ngắm nhìn bản thiết kế nhà ống 2 tầng đẹp ưa chuộng hiện nay
Ngắm nhìn bản thiết kế nhà ống 2 tầng đẹp ưa chuộng hiện nay
Gợi ý bản thiết kế nhà ống đẹp hợp xu hướng
Gợi ý bản thiết kế nhà ống đẹp hợp xu hướng
Tổng hợp bản vẽ thiết kế nhà 2 tầng đơn giản tiết kiệm chi phí
Tổng hợp bản vẽ thiết kế nhà 2 tầng đơn giản tiết kiệm chi phí

Chọn lựa bản vẽ thiết kế nhà 2 tầng ở nông thôn tối ưu
Chọn lựa bản vẽ thiết kế nhà 2 tầng ở nông thôn tối ưu
Bộ sưu tập bản vẽ thiết kế nhà 2 tầng đẹp hiện đại
Bộ sưu tập bản vẽ thiết kế nhà 2 tầng đẹp hiện đại
Lưu lại ngay các bản thiết kế nhà 2 tầng đẹp ưa chuộng nhất
Lưu lại ngay các bản thiết kế nhà 2 tầng đẹp ưa chuộng nhất
Tổng hợp các bản vẽ thiết kế nhà 2 tầng đẹp tiện nghi
Tổng hợp các bản vẽ thiết kế nhà 2 tầng đẹp tiện nghi
Khám phá những bản thiết kế nhà 2 tầng đẹp lý tưởng
Khám phá những bản thiết kế nhà 2 tầng đẹp lý tưởng
Chia sẻ những bản vẽ nhà 2 tầng đẹp phong cách đa dạng
Chia sẻ những bản vẽ nhà 2 tầng đẹp phong cách đa dạng
Tham khảo bản vẽ thi công nhà 2 tầng thực tế
Tham khảo bản vẽ thi công nhà 2 tầng thực tế
Ấn tượng với bản vẽ phối cảnh nhà 2 tầng hiện đại
Ấn tượng với bản vẽ phối cảnh nhà 2 tầng hiện đại
Tuyển chọn bản vẽ nhà đẹp 2 tầng ở nông thôn gần gũi thiên nhiên
Tuyển chọn bản vẽ nhà đẹp 2 tầng ở nông thôn gần gũi thiên nhiên
Chiêm ngưỡng bản vẽ nhà đẹp 2 tầng kiểu dáng hiện đại
Chiêm ngưỡng bản vẽ nhà đẹp 2 tầng kiểu dáng hiện đại
Xem ngay bản vẽ mặt bằng nhà 2 tầng đơn giản tối ưu diện tích
Xem ngay bản vẽ mặt bằng nhà 2 tầng đơn giản tối ưu diện tích
Tổng hợp bản vẽ mặt tiền nhà 2 tầng đẹp mắt
Tổng hợp bản vẽ mặt tiền nhà 2 tầng đẹp mắt
Khám phá bản vẽ nhà 2 tầng đơn giản dễ thi công
Khám phá bản vẽ nhà 2 tầng đơn giản dễ thi công
Ngắm nhìn bản vẽ nhà 2 tầng nông thôn truyền thống kết hợp hiện đại
Ngắm nhìn bản vẽ nhà 2 tầng nông thôn truyền thống kết hợp hiện đại
Gợi ý bản vẽ nhà biệt thự 2 tầng sang trọng và tiện nghi
Gợi ý bản vẽ nhà biệt thự 2 tầng sang trọng và tiện nghi
Chi tiết bản vẽ mặt bằng nhà 2 tầng khoa học
Chi tiết bản vẽ mặt bằng nhà 2 tầng khoa học
Tuyển chọn bản vẽ mặt bằng biệt thự 2 tầng đẳng cấp
Tuyển chọn bản vẽ mặt bằng biệt thự 2 tầng đẳng cấp
Tổng hợp bản vẽ mẫu nhà 2 tầng đẹp phù hợp xu hướng
Tổng hợp bản vẽ mẫu nhà 2 tầng đẹp phù hợp xu hướng
Tham khảo bản vẽ mẫu nhà 2 tầng đơn giản dễ xây dựng
Tham khảo bản vẽ mẫu nhà 2 tầng đơn giản dễ xây dựng
Tải ngay bản vẽ chi tiết nhà 2 tầng chuẩn kỹ thuật
Tải ngay bản vẽ chi tiết nhà 2 tầng chuẩn kỹ thuật
Gợi ý bản vẽ thiết kế nhà 2 tầng đầy đủ công năng
Gợi ý bản vẽ thiết kế nhà 2 tầng đầy đủ công năng
Chọn lọc bản thiết kế nhà 2 tầng tiện ích và thẩm mỹ
Chọn lọc bản thiết kế nhà 2 tầng tiện ích và thẩm mỹ
Tham khảo bản vẽ biệt thự 2 tầng hiện đại phong cách châu Âu
Tham khảo bản vẽ biệt thự 2 tầng hiện đại phong cách châu Âu
Chiêm ngưỡng bản thiết kế chi tiết nhà 2 tầng từ A đến Z
Chiêm ngưỡng bản thiết kế chi tiết nhà 2 tầng từ A đến Z
Xem ngay bản thiết kế nhà 2 tầng đẹp đầy đủ bản vẽ phối cảnh
Xem ngay bản thiết kế nhà 2 tầng đẹp đầy đủ bản vẽ phối cảnh
Chi tiết bản vẽ kết cấu nhà 2 tầng chuẩn kỹ thuật thi công
Chi tiết bản vẽ kết cấu nhà 2 tầng chuẩn kỹ thuật thi công

>>> Xem thêm tại: Mẫu nhà mặt tiền 6m - Tối ưu không gian, đẹp hiện đại

Lưu ý khi thiết kế bản vẽ nhà 2 tầng

Để có được một bản vẽ nhà 2 tầng hoàn chỉnh, tối ưu và phù hợp với nhu cầu, bạn cần đặc biệt lưu ý những điểm sau:

Xác định rõ nhu cầu và công năng sử dụng

Trước khi bắt tay vào thiết kế, hãy liệt kê chi tiết các phòng chức năng bạn cần (số lượng phòng ngủ, phòng khách, bếp, WC, phòng thờ, phòng sinh hoạt chung, sân phơi, gara...). Đồng thời, hãy xác định số lượng thành viên trong gia đình và thói quen sinh hoạt để kiến trúc sư có thể bố trí không gian hợp lý nhất. Ví dụ, nếu có người lớn tuổi, nên bố trí phòng ngủ ở tầng trệt.

Tối ưu hóa không gian và ánh sáng tự nhiên

  • Bố trí mặt bằng hợp lý: Sắp xếp các khu vực chức năng liên thông để tạo cảm giác rộng rãi, thông thoáng. Tránh các không gian "chết" hoặc quá nhiều vách ngăn.
  • Tận dụng ánh sáng và thông gió: Đảm bảo có đủ cửa sổ, ban công, và nếu cần, thiết kế giếng trời để đưa ánh sáng và không khí vào sâu bên trong nhà, đặc biệt với những lô đất có chiều ngang hẹp. Bản vẽ nhà 2 tầng lý tưởng luôn ưu tiên yếu tố này.

Lựa chọn phong cách kiến trúc phù hợp

Phong cách kiến trúc nên hài hòa với sở thích của gia đình và cảnh quan xung quanh.

  • Nhà 2 tầng hiện đại: Ưu tiên đường nét đơn giản, hình khối mạnh mẽ, vật liệu kính, bê tông, sắt.
  • Nhà 2 tầng tân cổ điển: Kết hợp nét cổ điển (phào chỉ, hoa văn nhẹ nhàng) với sự tinh tế của hiện đại.
  • Nhà 2 tầng mái thái/mái nhật: Mang lại vẻ đẹp truyền thống nhưng vẫn rất thanh lịch, giúp thoát nước tốt và chống nóng hiệu quả.

Chú trọng kết cấu và móng nhà

Một bản vẽ nhà 2 tầng chuyên nghiệp sẽ bao gồm các tính toán chi tiết về kết cấu móng, cột, dầm, sàn. Móng nhà phải đảm bảo chịu được tải trọng của 2 tầng và ổn định trên nền đất. Việc tính toán kết cấu chính xác sẽ đảm bảo sự an toàn và bền vững cho toàn bộ công trình.

Tính toán chi phí và ngân sách

Thiết kế bản vẽ cần đi đôi với việc dự trù kinh phí xây dựng. Hãy trao đổi với kiến trúc sư về ngân sách dự kiến để họ có thể đưa ra các giải pháp vật liệu và thiết kế phù hợp, tránh phát sinh chi phí quá lớn trong quá trình thi công.

Lựa chọn đơn vị thiết kế uy tín

Để có được một bản vẽ nhà 2 tầng chất lượng, chuyên nghiệp và đúng ý, việc lựa chọn một công ty kiến trúc có kinh nghiệm, đội ngũ kiến trúc sư giỏi là rất quan trọng. Họ sẽ giúp bạn biến ý tưởng thành hiện thực, giải quyết các vấn đề kỹ thuật và đảm bảo công năng sử dụng tối ưu.

Lựa chọn đúng bản vẽ nhà 2 tầng sẽ giúp tiết kiệm thời gian, công sức và chi phí xây dựng. Đừng quên cân nhắc công năng, thẩm mỹ và phù hợp với nhu cầu thực tế của gia đình bạn.